1. 건축가 알도 로시
최신 백과사전
Aldo Rossi(1931년 5월 3일 - 1997년 9월 4일)는 이탈리아의 건축가이자 디자이너로 건축 이론, 제도 및 디자인, 제품 디자인의 네 가지 분야에서 국제적인 인정을 받았습니다. 그는 포스트모더니즘 운동의 주요 지지자 중 한 사람이었으며 건축 부문에서 프리츠커상을 수상한 최초의 이탈리아인이었습니다.
어린 시절
그는 이탈리아 밀라노에서 태어났다. 그는 Somasscan 수도원 명령과 1949년 Lecco의 Alessandro에서 조기 교육을 받았습니다. Volta 대학에서 교육을 받은 후 Politecnico di Milano에서 건축 학부에 입학했습니다. 그의 논문 지도교수는 Piero Portaluppi였으며 1958년에 졸업했습니다. 1955년에 그는 건축 잡지인 Casabella Continuita에 글을 쓰기 시작했으며 1959년부터 수석 편집자가 되었습니다. 편집장은 Ernest Nathan Rogers였습니다. Rossi는 1964년에 편집장을 떠났고 Gian Antonio Bernasconi로 대체되었습니다.
Rossi는 나중에 잡지 Societa와 Il Contemporaneo에서 일하면서 당시 열광적인 문화 토론에 가장 적극적으로 참여했습니다. 그의 초기 기사는 Alessandro Antonelli, Mario Ridolfi, Auguste Perret 및 Emil Kaufmann과 같은 건축가를 다루었으며 그의 두 번째 저서 Scritti scelti sull'architettura e La città 1956-1972”(1956년부터 1956년까지 1972). 그는 스위스 여배우 Sonia Gessner와 결혼하여 영화와 연극의 세계로 이끌었습니다. 문화와 가족은 그의 삶의 중심이 되었습니다. 그의 아들 파우스트는 카메라 앞과 뒤에서 영화 제작에 적극적으로 참여했습니다. 그의 딸 Vera는 연극에 참여했습니다.
직업
그는 Marco Zanuso의 스튜디오로 옮기기 전에 1956년 Ignazio Gardella의 스튜디오에서 프로 경력을 시작했습니다. 1963년에 그는 처음에는 아레초의 도시 계획 학교에서 Ludovico Quaroni(1963)의 조교로, 그 다음에는 베니스의 건축 연구소에서 Carlo he Aimonino의 조교로 가르치기 시작했습니다. . 1965년에 그는 밀라노 폴리테크닉 대학의 강사로 임명되었고, 이듬해에는 건축 문학의 고전이 된 도시의 건축을 출판했습니다. 처음에는 건축 이론과 작은 건물 작업에 집중했지만 Aimonino가 Rossi에게 밀라노의 Gallaratese 지역에 있는 Monte Amiata 단지의 일부를 설계하도록 허용하면서 그의 전문 경력은 큰 발전을 이루었습니다. 맨 아래. 1971년 모데나의 산 카탈도 공동묘지 증축 설계공모에서 당선되어 국제적인 명성을 얻었다. 정치적으로 어려운 시기에 이탈리아에서 교수직이 정지된 후 그는 ETH 취리히로 옮겨 1971년부터 1975년까지 건축 디자인 교수로 재직했습니다.
1973년에 그는 제15회 밀라노 장식 예술 및 현대 건축 트리엔날레에서 국제 건축 섹션의 책임자였으며 특히 그의 제자인 Arduino Cantafora를 선보였습니다. 전시회에 대한 Rossi의 디자인 아이디어는 International Architectural Catalog와 Luigi Dulissi가 감독하고 Gianni Braghieri 및 Franco Razzi와 함께 제작한 16mm 다큐멘터리 장식 및 범죄에 설명되어 있습니다. 1975년 Rossi는 이탈리아로 돌아와 베니스에서 건축 구성을 가르쳤습니다. 1979년에 그는 저명한 St. Luke's Academy의 회원이 되었습니다. 한편으로 그의 기술은 국제적인 관심을 끌었습니다. 그는 뉴욕시의 Cooper Union과 뉴욕주 Ithaca의 Cornell University를 포함한 여러 미국 대학에서 가르쳤습니다. 코넬 대학교에서 그는 Institute of Architecture and Urbanism과 뉴욕 현대 미술관 간의 합작 투자에 참여했으며 중국과 홍콩을 여행하고 남미에서 열린 회의에 참석했습니다.
1981년에 그는 자서전인 Scientific Autobiography를 출판했습니다. 이 작업에서 저자는 "조각으로" 기억, 사물, 장소, 모양, 문학 노트, 인용문 및 통찰을 회상하며 "...사물과 인상을 조사, 설명 또는 설명하는 방법을 찾고 있습니다". 노력하고있어. . 같은 해에 그는 베를린 중심부의 Kochstrasse와 Wilhelmstrasse의 모퉁이에 있는 아파트 건물 디자인에 대한 국제 공모전에서 1등상을 받았습니다. 1984년 Rossi는 Ignazio Gardella 및 Fabio Reinhardt와 함께 제노아의 Teatro Carlo Felice 리노베이션을 위한 공모전에서 우승했지만 1991년까지 완전히 완공되지 않았습니다. 극장. 베니스 비엔날레의 건축 전시회에는 Santa Maria di Sara의 Villa Farcetti와 같은 원거리 전시 공간도 포함됩니다. 1987년에 그는 두 개의 국제 대회에서 우승했습니다. 하나는 파리의 라 빌레트 공원 부지였고 다른 하나는 베를린의 독일 역사 박물관이었습니다. 그러나 그것은 실현되지 않았습니다. 1989년에 그는 Unifor(현재 Molteni Furniture의 일부)와 Alessi에서 제품 디자인 작업을 계속했습니다. Alessi를 위해 디자인된 그의 에스프레소 메이커 La Cupola는 1988년에 출시되었습니다.
1990년 프리츠커 상을 수상했습니다. 1991년 일본 후쿠오카 시는 호텔 단지인 더 팰리스(The Palace)의 성과를 인정받아 미국 건축가 협회(American Institute of Architects)로부터 공공 건축 부문 토머스 제퍼슨 메달(Thomas Jefferson Medal for Public Architecture)을 수상했습니다. 이러한 영예로운 상을 받은 후 파리의 Centre Georges Pompidou, 암스테르담의 Beurs van Berlage, 베를린의 Berliner Gallery, 벨기에의 Ghent Museum of Contemporary Art에서 전시회가 열렸습니다. 1996년에 그는 미국 예술 문학 아카데미의 명예 회원이 되었으며 이듬해에는 건축 및 디자인 부문 특별 문화상을 받았습니다. 그는 1997년 9월 4일 밀라노에서 교통사고로 사망했습니다. 사후에 그는 도시 연구에 대한 공헌으로 Torre Guinigi Award를, 1995년에는 단독 주택 건설로 Florida Seaside Institute의 Seaside Prize를 수상했습니다. 항소에서 그의 제안은 1999년 베니스에서 열린 Teatro La Fenice 복원 대회에서 우승했고 2004년에 다시 열렸습니다. 1999년에 Cesena에 기반을 둔 볼로냐 대학의 건축 학부는 그의 이름을 따서 명명되었습니다.
일하다
1960년대 그의 초기 작품은 주로 이론적인 것으로, 1920년대 이탈리아 모더니즘(Giuseppe Terrani 참조), 비엔나 건축가 Adolphus Loos 및 화가 Giorgio de Chirico의 고전주의적 영향을 반영했습니다. 동시에 보여주었다. 스탈린주의 건축을 공부하기 위해 소련을 방문한 것도 큰 인상을 남겼다. 그의 책에서 Rossi는 현대 건축 관행에서 도시에 대한 이해 부족을 비판했습니다. 그는 도시는 시간이 지남에 따라 건설된 대로 연구되고 평가되어야 한다고 주장했습니다. 특히 흥미로운 것은 시간의 시험을 견디는 도시 공예품입니다.
Rossi는 도시가 그들의 과거(우리의 "집단적 기억")를 기억하고 우리가 기념비를 통해 그 기억을 활용한다고 주장했습니다. 즉, 기념물은 도시에 구조를 부여합니다. 고대 유럽 도시의 영속성에서 영감을 얻은 Rossi는 노후화에 저항하는 유사한 구조를 만들려고 했습니다. Rossi는 1970년대 후반과 1980년대에 그의 건축 작업이 확장되고 그의 저서 The Architecture of the City에서 이론이 홍보되면서 매우 영향력이 커졌습니다. (L'architettura della città, 1966) 및 A Scientific Autobiography(Autobiografia Scientifica, 1981). 규모면에서 Rossi의 프로젝트 중 가장 큰 것은 이탈리아 모데나에 있는 San Cataldo Cemetery로 1971년에 착공했지만 아직 완공되지 않았습니다. Rossi는 그것을 "죽은 자의 도시"라고 불렀습니다. 그의 건물의 특징적인 독립성은 Rossi가 디자인한 제품의 마이크로 아키텍처에 반영되어 있습니다. 1980년대에 Rossi는 Alessi 및 Pirelli와 같은 브랜드를 위해 스테인리스 스틸 카페티에 및 기타 제품을 디자인했습니다.
전시회
1979년 베니스 비엔날레를 위해 Rossi는 250명을 수용할 수 있는 Floating Teatro del Mondo를 디자인했습니다. 1984년 베니스 비엔날레를 위해 그는 전시장 입구에 있는 개선문을 디자인했습니다. 2006년, Delft 건축 회사인 Ufo Architecten이 Maastricht의 Bonnefanten 박물관 앞에 Aldo Rossi가 1989년에 설계한 2개의 타워를 세웠습니다. 2021년 로마의 MAXXI 박물관은 "Aldo Rossi, Architect and City"라는 제목의 회고전을 선보일 예정입니다.
수상
Aldo Rossi는 1990년 권위 있는 Pritzker 건축상을 수상했습니다. 건축 평론가이자 Pritzker 심사위원인 Ada Louise Huxtable은 Rossi를 "우연히 건축가가 된 시인"이라고 묘사했습니다.
건축활동
1960 베르실리아의 빌라 아이 론키 1962 쿠네오 저항 기념비 대회
1964년 파르마의 새로운 파가니니 극장과 필로타 광장을 위한 경쟁 1964년 밀라노 트리엔날레 다리
1965년 세그레이트 기념비적 분수 1966년 몬차의 산 로코 지구 대회
1967-1974 밀라노, Monte Amiata Complex, Gallaratese 지구, Carlo Aimonino와 함께 1968 스칸딕 시청 디자인
1971-1984 모데나 산 카탈도 납골당 및 공동묘지 1972 무기오 타운홀 설계 1972년 Fagnano Olona의 초등학교
1973년 밀라노 트리엔날레 다큐멘터리 영화 "장식과 범죄" 1974 트리에스테 지방 의회 본부 및 학생 기숙사 설계
1976 키에티 학생 기숙사 설계 1977 피렌체 비즈니스 센터 설계 1977년 모조 단독주택 1978 테아트리노 사이티피코
1979 베니스 비엔날레를 위해 250석 수상 몬도 극장과 개선문 건설
1979년 독일 서베를린에서 열린 "IBA 84" 전시회를 위한 Suedrich Friedrichstadt의 아파트
1979 파르마의 토리 쇼핑 센터 Arduino Cantafora와 함께하는 1979년 부로니 중학교 1979 기념비, 멜버른, 호주
1981-1988년 독일 베를린의 빌헬름스트라세(Wilhelmstrasse) 교차로에 있는 코흐슈트라세(Kochstrasse)의 베를린 지구 1982 페루자에 Fontibegge 본사 설립 1982 House Pocono Pines, 마운트 포코노, 펜실베니아, 미국
1982 브루노 롱고니의 엘바 섬 오두막 1983 Borgolicco 시청 디자인
1984-1987, GFT Financial Textiles Group의 본거지인 Turin의 Casa Aurora
1984년 피렌체 남성 패션 이벤트 "Pitti Uomo" 준비 1984-1991 제노아, 카를로 펠리체 극장 리노베이션
1985 토리노의 GFT Financial Textile Group 전시 스탠드 준비 1985년 밀라노 Vialba 지구의 주거용 건물
1986-1989 후쿠오카시 팰리스 호텔 1986 South Villette, 파리, 프랑스 1987 등대 극장, 토론토
1988-91 호텔 두카 디 밀라노, 밀라노 1988-1990 산드로 페르티니 기념비, 밀라노
1989 De Lamel Appartement, 헤이그, 네덜란드 1989 피소르노 광역권, 티레니아(피사) 도시계획
1990-1992 Città di Castello의 주거용 건물 및 이전 산업 지역
1990-1993 티레니아 코스모폴리탄 골프 클럽 클럽하우스(피사)
1990년 플로렌스 Via Canova의 Social Health Complex
1991 플로리다 주 올랜도에 있는 월트 디즈니 회사 관리 건물
1991 프랑스 보몽뒤락 바시비에르 섬에 현대미술센터 설립
1991년 Castellanza의 이전 면화 공장이었던 Cantoni를 Carlo Cattaneo 대학의 메인 캠퍼스로 재개발
1991 프랑스 파리(19구) 음악의 도시 근처 우체국과 아파트 1992 Ignazio Gardella와 함께 제노아의 Teatro Carlo Felice 재건
1993년 브루노 롱고니의 개인 피렌체 옷장 베를린의 Schutzenstrasse 지구,
1994-1998(사진) 1995 Bonnefanten Museum, 마스트리흐트, 네덜란드 1995년 몬테카티니 구 쿠르살 지구 활성화
1996년 독일 베를린 매거진 콤플렉스 1996 베로나의 Ca di Cozzi 중앙 지구 1996-1998 기타큐슈 모지코 호텔
1997년 볼로냐 아트 팩토리 지구 디자인 1997 Terranova 쇼핑 센터, Olbia, Sardinia
1999-2004 베니스 테아트로 라 페니체 리노베이션 2000년 월트 디즈니 스튜디오의 리버사이드 빌딩, 버뱅크, 캘리포니아 2001 Scholastic Headquarters, 뉴욕, 미국
제품 디자인
아키텍처 외에도 Rossi는 다음과 같은 제품 디자인을 만들었습니다. 1982 알레시 원뿔형 커피 메이커와 주전자 1983 Luca Meda와 공동으로 Molteni Group Teatro Chair. 1987년 Molteni Group의 밀라노 회장으로 임명되었습니다. 1988 Alessi La Cupola 커피 메이커. 1988 알레시 일 코니코 티 케틀. 1989년 Unifor Paris 사장으로 임명되었습니다. 이제 Molteni 그룹의 일부입니다. 1989 Unifor의 Decartes 책장은 이제 Molteni Group의 일부입니다. 1989 Unifor의 Consiglio 테이블은 이제 Molteni Group의 일부가 되었습니다. 1989 알레시 모멘트 클락.
간행물
파도바 시 건축: Marsilio, 1966. 건축과 도시에 관한 선정 작품: 1956-1972 (건축과 도시에 관한 선정 작품: 1956-1972), R. Bonicarzi 편집, 밀라노: ULC, 1975. 과학적 자서전 Parma: Practices, 1990.
추가 자료
팡가로스, 파나요티스(2008). 현대 건축에서 시간의 중요성. 기술과 시 시간: 알도 로시를 위하여. 논문. 그리스 파트라스 대학. 아넬, 피터, 빅포드, 테드(1985). 알도 로시. 건물과 프로젝트. 뉴욕: 리졸리. ISBN 0-8478-0499-2. Berlucchi, 니콜라스 (2000). "알도 로시: 라 페니체 극장의 재건". 지역(이탈리아어). 51. 2008년 2월 13일에 원본 문서에서 보존된 문서. Ferlenga, 알버트 (1996). 알도 로시. 완전한 작품 (1993-1996) (이탈리아어). 밀란: 에렉타. ISBN 88-435-5543-X. Leoni, G. (ed.) (1997). "알도 로시(Aldo Rossi)와의 인터뷰, 구축된 것을 기반으로". 지역(이탈리아어). 32:44~47. 2003년 1월 6일에 원본 문서에서 보존된 문서. 존 폴라치(1999). "Aldo Rossi Association - 이전 도축장 지역". 지역(이탈리아어). 46:106–110. 2008-02-13에 원본 문서에서 보존된 문서. Savi, Vittorio 및 Aldo Rossi의 건축, Franco Angeli Edizioni, 밀라노, 1975. Pangaros, Panayotis 및 Aldo Rossi의 건축에서 시간의 중요성, ed. 구텐베르크, 아테네, 2012. Moschini, Francesco, Aldo Rossi Projects and Drawings 1962-1979 (Aldo Rossi Plans and Drawings 1962-1979), Edizioni Center, Florence, September 1979. 국제 공동 편집자 Rizzoli New York, London Academy Edition, École Paris, Zarite Madrid. 시어러, 다니엘. 2018년 2월 5일부터 3월 30일까지 알도 로시 서거 20주기를 기념하기 위해 프린스턴 건축대학에서 열리는 전시를 위한 큐레이터의 에세이 "알도 로시: 유사 도시의 건축". 그리고 예술”. Taffri, Manfredo, Storia dell'architettura italiana 1944-1985 (이탈리아 건축사 1944-1985), Einaudi, Turin, 1982. Verlenga, 알베르토, 알도 로시. Complete Works (1993-1996) (Aldo Rossi. Complete Works (1993-1996)), Elekta, 1996. Leoni G (ed.), Building on thebuilt, 인터뷰 with Aldo Rossi(Building on thebuilt - 인터뷰 with Aldo Rossi), Area 32, 1997년 5월/6월, pp. 44–47.
외부 링크
Rossi에 대한 Pritzker Prize 웹 페이지. 알도 로시의 보네판텐 박물관 Find and Tell: Kurt Foster on Aldo Rossi, 캐나다 건축 센터 캐나다 건축 센터, 알도 로시 재단 지원 모색 알도 로시 재단 Aldo Rossi의 다양한 디자인 도시 건축, 세계 극장. 합리성과 파토스 사이의 알도 로시 아키텍처의 비극적 측면, Gina Oliva(이탈리아어), 2021년 1월 28일 Wayback Machine에 보관됨 “몸과 건축. Aldo Rossi and Bernardo Tschumi” Michele Costanzo (Italian) Archived on Wayback Machine on 2021년 1월 28일 Francesco Moschini 건축 및 현대 미술 컬렉션의 Aldo Rossi 디자인 Aldo Rossi, 과학적 상상력과 시적 논리, Sabine Claus, 2008(프랑스어) Getty 연구소의 Aldo Rossi 논문
비디오
2. 이탈리아 신합리주의 건축, 알도 로시
알도 로시(Aldo Rossi)는 1931년 밀라노에서 출생하여 밀라노공대를 졸업하고 모교에서 교수생활을 하였고 1960년대 대학투쟁에 관여되었다. 1971년에 밀라노를 떠나 취리히로 옮겨 수년간 스위스에서 교직생활을 하다가 1975년부터는 베네치아 건축대학 교수로 재직하였다. 그는 유럽 건축계에서 가장 주목을 받고 있는 신합리주의의 대표적인 건축가로 1968년 이후 그의 이론과 여러 프로젝트들은 이탈리아뿐만 아니라 세계 많은 건축가들에게 상당한 영향을 끼쳤다.
로시와 오스발트 마티아스 웅거스(Oswald Matis Ungers)로부터 시작된 오늘날 신합리주의 경향은 기능주의에 대한 해답이라고 할 수 있다.유럽의 합리주의 건축가들은 구조와 미학의 기능적 진부성과 일상적 경험에 대하여 반기를 들고, 건물 형태를 위한 새로운 의미를 되찾으려고 애를 썼다. 이 새로운 의미는 지난날의 독재주의, 전체주의적 건축과 관련지어 불합리한 평을 듣기도 했다.
로시는 건물 형태의 원형탐구에서 건축의 공상적 내용을 찾았다. 그는 '건물(집)이 무엇인가'라는 원래의 착상으로 되돌아감으로써 그가 설계한 건물 형태를 정립하였다.
로시는 근원적 구성방법으로 향하는 관념에 접근하였다.
기능주의자가 전문화된 목적에 적응을 시도한다면, 합리주의자는 대부분 그 상응성의 결과를 중요시한다고 할 수 있다.
전자는 특별한 경우에 정확한 적응성과 규범을 원할 것이다. 전자는 적응성, 관련성, 혼동에 의한 비율규정에 관한 것이고, 후자는 역시 자발성, 자각, 연출, 형태에 관한 것이다. 기능주의의 진부함에서 빠져나와 거장으로 향하는 길은 점점 더 고전적 근대주의에서 멀어져갔다. 즉, 로시의 합리주의는 점차로 독자적이고, 또 새로운 스타일이 된 것이다.
로시는 1923년에 발행된 아돌프베네(Adolf Behne)의 책 <기능적인 현대건물(Dermoderne zweckbau, the Function Modern Building>을 소개했으며 1973년 제15회 밀라노 건축제에 로시는 <Architettura Razionale>라고 하는 건축과를 설립했다.
그의 작품으로는 <로니학교(1960∼1970)>, <세그라테 시청사 광장과 분수(1965)>, <성 사바지역의 트리에스테 중학교(1968∼69)>, <성 카타르도의 묘지· 모델(1976)>, <보르고의 산장과 파빌리온(1973)>, <베니스 비엔날레 건축전의 정문(1980)> 등이 있다.
로시의 건축은 유추적이다.
한 인간의 침전된 기억, 역사의 단편, 서지학적인 지각, 연극의 무대, 실상과 허상 및 이미지와 현실세계 등이 혼합되고 그것이 로시가 갖고 있는 유추의 회로를 거쳐서 건축으로 형상화된다.
기억의 회로를 거친 건축, 그것이 생의 공간이든 죽음의 공간이든 간에 그의 건축은 영원의 부재가 주제가 되고 있다고 할 수 있다.
도시와 건축
① 도시는 전체고, 건축은 부분이다?
"도시는 크고, 건축은 작다. 건축이 모여 도시를 이룬다." 물리적인 측면에서만 봐도 도시는 건축보다 크다. 더욱이 도시는 나이를 먹어감에 따라 성장하기 때문에 도시는 커져 간다. 그러나 도시는 건축물의 집합체 말고도 여러 가지 요소를 포함하고 있으므로 건축이 한 부분이 될 수는 있지만, 건축이 모여 도시가 되지는 않는다.
② 도시는 2차원(평면적)이고, 건축은 3차원(입체적)이다?
"도시는 땅과 길을 나누는 기술로 이루어지는, 그러니까 아무래도 지도상에서 이루
어지는 것이다. 반면 건축은 높이가 있어 X-Y-Z 축이 있고, 부피가 있고, 입체감이
있다." 그러나 도시의 주거, 노동, 휴식이라는 주요 기능은 충분한 공간과 태양, 그
리고 환기라는 절대적인 요구를 따르는 건축된 볼륨의 내부에서 전개된다. 이런 볼
륨은 지면과 2차원에 의존할 뿐 아니라 특히 3차원, 즉 높이에 의존한다. 예를들어
차량을 조절하기 위한 고가 차도가 여기에 해당된다.
③ 도시는 보편解고, 건축은 특수解다?
"도시는 누구에게나 어필하는 보편적 환경을 만드는 것이고, 건축은 하나의 땅에 대
해 창조의 과정을 거쳐 그 땅에 합당한 하나의 특수한 해답을 만들어 내는 것이다."
④ 도시는 계획이고, 건축은 설계이다?
"도시는 합리적이고 분석적인 틀을 통해 목표와 그 구현수단을 분명히 한다는 점에
서 계획이고, 건축은 어떠한 과정을 통해서든 하나의 가시적 결과물을 만들어낸다
는 점에서 설계이다."
⑤ 도시는 공적 활동이고, 건축은 사적 창조이다?
"도시는 많은 행위자를 엮어내는 기술이고, 따라서 공공영역에서 많은 행위들이 이
루어지며, 건축은 한 개인이 창조성에 바탕으로 하여 그 무엇을 만들어 내는 사적
인 행위다."
⑥ 도시는 과정이고, 건축은 결과이다?
"도시를 만드는 데는 시간이 걸리고, 많은 행위들이 연루되는 일종의 과정이고, 건축
은 상대적으로 짧은 시간에 만들어 내고 행위자가 분명하며, 가시적인 대상을 만 들
어 내는 것이다."
⑦ 도시는 `도시문제`고, 건축은 `건축가 문제`이다?
"도시의 문제는 교통문제, 범죄 문제, 각종 시설문제, 오염문제.......이고, 건축의 문제
는 창조자인 건축가의 문제이다."
3. 1990 프리츠크상 - 알도로시
알도 로시
Aldo Rossi
1931 ~ 1997
이탈리아 밀라노

1931년 : 이탈리아 밀라노에서 출생
1949년: 밀라노 공과대학교 건축학과에 입학 후 1959년 졸업
1955년~1964년:건축잡지 카사벨라 콘티뉴이타
(Casabella-Continuità)의 편집장을 역임
1956년: 이냐치오 가르델라
(Ignazio Gardell)의 건축사무소에서 첫 근무 *마르코 자누소(Marco Zanuso)의 사무소로 이직
1965년 :밀라노 공과대학교에서 강사로 재직
1966년 :첫 저서 《도시의 건축》을 출간



1971년 :모데나에 있는 산 카탈도(SanCataldo) 공동묘지 설계안이 당선되면서 국제적인 명성을 얻기 시작

1971~1975년 :스위스 취리히 연방 공대
건축디자인 교수
1975년: 베니스 건축대 에서 강의
1979년: 성 루가 아카데미 회원 가입
(Academy of Saint Luke)
*코넬대학교와 뉴욕 시에 소재한 쿠퍼 유니온(Cooper Union) 건축강의
1981년: 베를린 중심부의 아파트 단지 디자인 현상 공모에 당선
*자서전 《과학적 자서전》을 출간
1985~1986년: 베니스 비엔날레
국제건축전시회 디렉터로 활동

□ 건축 작품
신합리주의 건축양식을 다룬 대표적 건축가
1980년대에 건축이론과 드로잉, 디자인 분야에서 업적을 남겼다. 또한 그는 유형학의 기본 토대 위에 건축의 역사성과 지역성, 형태의 단순함과 엄숙성, 연속성 등으로 표현하고자 시도하였다. 그가 보여준 새로운 디자인적 시도들은 모더니즘에 바탕을 둔 합목적성과
기술적 차원의 대안을 강조하고 있다.
그는 새로운 건축이 해당 지역을 변화시켜야 한다는 신념대로 자신의 건축작품을 통해 새로운 도시 재생을 시도하였다.



☆
갈라라테세(Gallaratese) 집합주택
1969 ~73





☆
산 카탈도 국립묘지(San Cataldo Cemetery)
1971


세 면이 건물로 둘러싸여 있는 큰 뜰과 같은 형태로 설계

알도 로시는 과거의 환경에 대한 집단적인 기억을 되살리는 방편으로 종종 원형의 형상을 이용했다. 풍요로운 도시에 대한 아름다운 드로잉은 일종의 '유형적'건축을 드러내고자한다.
건축적 요소들이 간소화되어 입방체,원통,각주 등의 입체로 축조된 그의 그림은 구성적으로 동질성을 지닌 탑과 종탑들을 담아내며, 아련한 동경의 감정을 불러일으킨다. 도시 안에서 혼자 동떨어져 보이기보다는 자연스럽게 일부분으로 녹아 드는 디자인의 이론적 배경 속에서 외형적으로 참신하고 단순해 보인다 하더라도 디자인이 함축한 내용과 의미는 상당히 복잡한 층위를 보여준다
☆
파냐노 올로나(Fagnano Olona) 초등학교
1976


☆
테아트로 델 몬도(Teatro del Mondo
1979
베네치아

집단 기억과 건축을 연결하다


☆Wilhelmstrasse 36-38
1987
Berlino, Germania
parte di IBA Internationale Bauausstellung

☆Centro Torri shopping Center
1988
Parma Italy


☆
Edificio de viviendas Friedrichstadt
Berlin 1988


☆Villette Paris
1988

☆
일 팔라조(Ill Palazzo) 호텔
1989
일본 후쿠오카



창문이 없이 폐쇄된 파사드가 가장 큰 특징 호텔로 건축양식으로는 매우 특이하게도 주변 경관을 조망할 수 없는 건축양식을 표방하였다.
또한 이 건축물은 붉은 빛의 8개의 원형기둥과 녹색 빛의 가로기둥이 조화되어 현대 건축이지만 일본의 전통적 건축양식과 유사한 느낌을 자아낸다.

☆
Edificio Villette Sud
1991
Paris

☆
본네판텐(Bonnefanten) 미술관
1995
네덜란드 마스트리흐트

투박하지만 과장이 없고 절제된 건축
1990년대 초반 네덜란드 마스트리히트의
옛 공업지대를 새롭게 재생하는 프로젝트의 한 부분으로 지어졌다


☆
Quartier Schützenstrasse
Berlin Germany
1996

ㅡㅡㅡㅡㅡㅡAldo Rosdi Design

Left: Portrait Of Aldo Rossi, Right: Alessi La Conica Coffee pot, 1980-83

※
로시는 건물 형태의 원형탐구에서 건축의 공상적 내용을 찾았다. 그는 '건물(집)이 무엇인가'라는 원래의 착상으로 되돌아감으로써 그가 설계한 건물 형태를 정립하였다.
사람들은 종종 그를 '어쩌다 건축가가 되어버린 시인'이라 부른다. 그의 디자인들 중 실제 축조된 것들은 일부에 불과하지만,그가 보여준 디자인의 본질에 관한 이론들은 모더니즘에 근거한 합목적성에 관한 강조와 기술적 대안에 초점을 맞추고 있었다. 이러한 논의들은 현대 건축학에 있어 주요한 논점으로 부상했다.
. 또한 각각의 디자인이 무엇이 되었건, 즉 사무단지, 호텔, 공동묘지, 수상극장, 커피포트 등 그 무엇이든 간에 단 한 순간도 그 목적을 잊지 않는다는 점 역시 알도 로시의 특징이다.
"실증적 의미에서 나는 건축을 그것이 속해 있는 사회나 문명생활로부터 분리할 수 없는창도물로 이해한다.
따라서 건축은 그성격상 집단적인 것이다...건축은 문명과 함께 태어난 영속적,보편적,필수적 형성물다....
건축은 사회에 구체적인 형태를 부여하고, 사회와 자연과 밀접한 관계를 맺고 탄생하기 때문에 다른 어떤예술이나 과학과는 근본부터가 다르다.
도시는 도시의 건축과 긴밀한 관계를 맺고 있으며 그이유는 도시의 건축은 인간과 분리하여 생각할 수 없는 것이기 때문이다"
- 알도로시 -알도로시[도시의 건축중-
"궁극적으로, 우리는 유형이 바로 건축의 사고라고 말할수 있다. 그것은 본질에 가장 근접한 것이다. 변화대신 유형은 항상 그 자체로 건축과 도시의 원리에서처럼"감정" 과 "이성"에 호소 할것이다."
-알도로시 프리츠커상 수상 소감중-
"저는 서로 다른 문화 사이의 혼합에 대해 말하고 싶습니다.
우리는 이탈리아의 건축가 팔라디오가 살았던 시대와 유사한 시대를 살고 있습니다.
그 당시 이 도시나 나라의 건축은 러시아,영국,미국에 특별한 혼합을 만들었습니다.
모든 건물은 같으며 동시에 매우 다릅니다. 이런 이유로 저는 우리의 삶을 좀 더 자유롭고 좀 더 분명며 더 아름답게 우리의 도시를 재구성할 수 있는 능력을 가진 위대한 도시의 건축을 믿습니다."
출처 - 1990 프리츠커상: 알도 로시 : 네이버 블로그 (naver.com)
4. 미술관 BONNEFANTENMUSEUM

[뮤지엄 시리즈11] 마스트리흐트를 대표하는 미술관 BONNEFANTENMUSEUM
지금 네덜란드 마스트리흐트에서는 예술, 골동품, 디자인을 총망라하는 박람회 테파프 마스트리흐트(TEFAF Maastricht)가 개최되고 있습니다. 2019년 테파프 마스트리흐트는 3월 16일부터 24일까지 개최되며, 7000년의 예술사를 다루는 대규모 아트페어입니다.
(Dutch Culture Korea에서 소개한 지난 2018년 테파프 마스트리흐트 살펴보기)
테파프 마스트리흐트 개최를 맞아, Dutch Culture Korea [뮤지엄 시리즈11]에서는 마스트리흐트의 미술관을 한 곳 소개합니다. 바로, 예술 박물관이라는 뜻의 보너판턴 뮤지엄(Bonnefantenmuseum)입니다.
프리츠커 건축상 수상자 알도 로시가 디자인 한 보너판턴 뮤지엄
위의 사진과 같이 보너판턴 뮤지엄은 마스(Maas) 강변에 위치하고 있으며 독특한 외관으로 눈길을 사로잡습니다. 1990년대, 보너판턴 미술관은 옛 도자기 공장에 새로운 건물을 지으려 계획합니다. 그리고 ‘건축계의 노벨상’으로 불리는 건축 분야 최고 권위의 상인 프리츠커 건축상 수상자인 이탈리아 건축가 알도 로시(Aldo Rossi)에게 디자인을 요청했고, 이 새로운 미술관은 1995년 대중에게 공개되었습니다. 로시는 도시의 정체성을 보여줄 수 있는 중요한 공공건물로서 미술관을 보여주고자 했습니다.
건물은 벽돌, 자연석 등 전통적인 재료로 지어졌으며, 실내 바닥은 나무로 이루어졌습니다. 하지만 미술관 건물에서 가장 자연적인 요소는 낮동안 들어오는 햇빛입니다. 아래의 사진과 같이 중앙 계단은 천장으로 덮여있지만, 쏟아져 들어오는 햇빛으로 인해 밖에서 걸어다니는 것과 같은 기분을 느낄 수 있습니다. 이러한 빛의 활용이 이 건물의 주요한 특징 중 하나입니다.
독특한 건물의 외관과 더불어 전시실로 안내하는 상징적인 중앙 계단과, 둥근 지붕 등이 관람객들의 눈길을 사로잡습니다. 4층으로 이루어진 건물의 입구, 뮤지엄샵, 강연장, 카페 등 공공 공간 등은 1층에 위치하며, 1층 전시실은 소장품 전시를, 2층과 3층에서는 기획전을 선보입니다. 중앙 건물의 꼭대기 층은 인쇄실로 사용되고 있습니다.

Foto Paul Mellaart – 2004

Foto Kim Zwarts

Foto Kim Zwarts

© Bonnefantenmuseum

Foto Fritz Widdershoven

© Bonnefantenmuseum. Foto Harry Heuts

Foto Kim Zwarts

Published by Dutch Culture Korea
출처 - [뮤지엄 시리즈11] 마스트리흐트를 대표하는 미술관 Bonnefantenmuseum | Dutch Culture Korea
5. 산 카탈도 공동묘지-알도 로씨
모데나의 산 카탈도 공동묘지 Cimitero di San Cataldo a Modena
이상건축 0207 ㅣ 이상건축에서 기획했던 '우리 시대의 고전'이란 연재에 이탈리아 현대건축의 중요 건축물을 선정하고 집필해달라는 부탁을 받았다. 알도 로씨의 건축은 무미건조한 느낌때문에 별반 감동을 느껴지지 않는데, 이탈리아 건축에 대한 이해가 깊어지면 알로 로씨 건축의 지적인 매력에 깊이 빠져들게 된다. 차갑지만 이성적이고, 소박하지만 절제되어잇는 그의 건축은 공간적 풍성함과 근대에 대한 깊은 이해, 자기 땅의 역사에 대한 깊은 애정을 바탕으로 설계된 귀중한 사례이자, 고전으로 자리한다.
▶ 시작하면서
흔히 이탈리아는 모든 도시가 살아 있는 박물관으로 취급받는다. 그만큼 역사적인 유물과 흔적들이 도시 환경을 이루고 있다는 뜻인데, 건축가에게 이런 환경은 양날의 칼로 다가선다. 1900년대 초반 미래파가 근대적인 예술과 건축을 위해서 자신의 도시를 파괴하는 전쟁을 찬미하는 절규를 토해낸 것과 마찬가지로, 과거의 뛰어난 유적과 작품들은 건축가에게 새로운 작품을 시도할 여지를 주지 않는 것 같다. 이렇듯 참아내기 힘겨운 역사의 무게는 항상 많은 아이디어와 근거를 제공해주는 원천으로 존재하면서 동시에 건축가의 디자인 능력의 한 측면인 감성의 가벼움을 비웃기도 한다. 결국 이탈리아의 환경은 유행적이고 가벼운 건축보다는 합리적이고 지적으로 충만한 건축이 존재할 있는 기반을 마련해주는 토양이 되며, 그러므로 건축가는 이론과 디자인 능력이 겸비되고, 비판적인 역사 의식과 현실 참여적인 지식인으로서의 자세를 유지해야만 존재할 수 있는 것이다.
이탈리아 현대건축의 대표 주자인 건축가 알도 로시(A. Rossi)의 <산 카탈도 공동묘지>는 이탈리아 신합리주의 건축의 정수를 보여주는 작품으로 건축과 도시, 과거와 현재, 삶과 죽음, 일상과 비일상이 건축가의 지적인 해석을 통해 만나서 어루어내는 감동의 드라마이다. 흔히 건축가는 감성적 측면과 이성적 측면의 끊임없는 교감을 통해서 작품을 만들어낸다는 통념을 이 작품은 여지없이 파괴해버린다. 이 작품은 건축가에게 필요한 것은 감성보다는 차가운 이성에 바탕을 둔 합리적 사고방식과 그것들을 현재의 디자인으로 엮어낼 수 있는 능력과 선택에 있다는 서구적 방식의 인식체계를 극명하게 드러내준다고 할 수 있다. 1949년 밀라노공과대학에 입학해 10년만에 대학을 졸업한 로시는 당시의 거장인 루도비코 쿠아로니(L. Quaroni)와 카를로 아이모니노(C. Aymonino)와 함께 실무와 교육을 병행하면서 1966년 자신의 건축 이론서인 <도시의 건축(Architettura della Città)>를 발간하면서, 근대건축의 몰락이후 좌표잃은 현대건축에 역사와 도시의 중요성을 부각시키는 신합리주의 건축의 대표적인 건축가이다. 그리고 1971년 그는 건축유형학 이론을 설계방법에 적용한 <산 카탈도 공동묘지>현상설계에서, 이탈리아 신합리주의 건축의 진수를 보여주는 작품을 당선시키면서 현대건축의 새로운 지평을 보여준다.
▶ 신합리주의 건축- 고전과 유형학
새로운 건축을 시도하는 데 걸림돌이 되었던 역사적인 환경은 이탈리아 건축가들에게 건축에 대한 접근 방식에 있어서 독특한 성격을 부여하는데, 그것은 바로 역사에 대한 끊임없는 강박 관념이라고 할 수 있다. 이러한 성격은 쥬세페 테라니(G. Terragni)로 대표되는 이탈리아 합리주의 건축에서도 나타난다. 역사와 전통에 대한 사고 방식은 바라보고 복제해야 할 대상이 아니라 새롭게 무엇인가를 만들어내는 원천으로 작용한다. 즉, 고전에 대한 이해 방식이며, 존재하는 것에 대해 끊임없이 회의를 품게 만드는 촉매로 작용한다. 이런 역사 해석 또는 전통 수용을 위한 방법론으로 신합리주의 건축가들은 건축유형학을 선택한다.
역사와 주변의 맥락과의 관계맺기를 거부했던 근대건축의 한계를 뛰어넘기 위해서 신합리주의 건축가들은 건축의 역사성과 연속성, 그리고 도시적 측면으로 확장되고 도시의 특성과 성격을 담고 있는 건축의 존재적 측면을 강조한다. 기존의 역사와 전통의 의미를 부정하지 않으면서 지역적인 맥락과 근대건축에 의해 성취된 미학적 경험치를 건축에 통합하려 했던 신합리주의 건축은 전후 세대의 건축적 교육체계를 구축하는 과정에서 만들어진 자신의 삶과 환경에 대한 애정에서 출발한 것이었다. 결국 신합리주의 건축에서 유형 개념이란 새로운 것을 만들어가는 데 필요한 참조할 수 있는 선례들을 이해하고 분류하면서 발견하게 된 건축설계 과정의 최소한의 근거와 출발점으로 작용했다고 할 수 있다. 그러므로 유형이라는 것은 과거 지향적인 성격도 내포하고 있으나, 개념적인 유연성과 사고의 폭을 확장하면 건축에서 고전이라는 의미에 맞닿아 있다고 할 수 있다. 즉, 기존의 것을 새롭게 보는 눈, 기존의 것을 기반으로 새롭게 출발하는 방법을 구축하는 것, 현실적인 여건에 맞게 기존의 것을 변형하는 모든 노력들이 고전에 대한 새로운 이해 방법이고, 고전 해석을 통해서 설계 과정에 역사를 구체적으로 끌어들이는 방법이라고 규정된다.
▶ 도시와 건축
알도 로시는 계몽주의 시대의 건축적 연구를 기반으로 자신의 건축이론을 구축했다. 에티엔느 블레(E. L. Boullée)나 클로드 르두(C. N. Ledoux), 아돌프 로스(A. Loos) 등의 준거를 갖고 있는 로시는 신합리주의 건축가들과 함께 계몽주의 시대 건축가들이 관심을 가졌던 도시건축 구상의 명료성에 주목했다. 또한 로시는 기존의 건축이론가들이 주장한 유형의 개념을 건축가의 입장에서의 새로운 발견과 조직화를 시도한다. 작가의 입장을 더욱 강조하는 로시는 역사적 자료로서의 유형 개념을 거부하면서 건축가의 주관이 더욱 개입된 해석적 측면을 강조한다. 그에게서 유형은 도시 속에서 대표적인 단편을 찾아내어, 그 단편의 의미를 건축가의 해석을 통해서 확장시켜가는 작업인 것이다. 결국 로시에게서 유형학은 도시 형태의 분석 도구로서 이용되며, 건물의 스케일과 도시와의 갭(gap)을 잇는 교량으로서의 도구적인 역할을 할 뿐이다.
예를 들어 ‘복도’는 기본 유형이며, 로시의 건축에서 살림집, 기숙사, 학교 등 어떤 건축에나 적용이 가능하다. 형태는 단순히 기능을 만족시키는 과정에서 생성되는 것이 아니고, 독자적인 과정을 가지며 형태 자체의 역사적인 전개를 연구함으로써 하나의 유형을 얻을 수 있다고 보는 것이다. 소위 단편으로서 채택되는 기존 환경의 역사적 유형들은 로시 자신의 독특한 선택으로서, 그 변형 또한 지극히 개인적이다. 그 자신의 개인적 기억이 도시건축이 지닌 역사의 집단적 기억을 일으키는 실마리가 될 수 있다는 것을 스스로 신뢰하고 있는 자세로 보인다. 모델의 창조, 모델의 법칙을 찾아내는 것, 그것이 건축을 하는 것이라고 보는 로시의 자세는 모든 건축 작품이 유형의 지위를 지향한다는 아르강(G.C. Argan)의 명제를 받아들이고 있다. 이때의 유형 개념은 오히려 모범적이고 이상적인 원형의 개념에 가깝다.
로시의 건축이론을 ‘제3의 유형학’으로 규정한 비들러(A.Vidler)는 그 특징을 도시를 전체로 파악하는 자세, 그 속에서 한 단편을 선택하며, 그 단편의 의미를 확장시켜 가는 조작 과정―원래 맥락 속에서 갖는 의미, 단편 자체의 의미, 새 맥락에서의 의미―으로 해설하고 있다. 로시에게 도시는 사회적 내용으로부터 자유롭고 물리적 형태로 축약되어 있는 건축설계의 바탕이다. 도시는 유형 분류의 원자료들을 제시해주며 그렇게 얻어낸 유형들을 재구성하고 변형시켜 끼워놓을 자리인 것이다. 그리하여 건축설계는 도시를 단편으로 분해하여 선택하고 해체한 후 재구성하는 작업이 된다. 건축을 자연에 유추하거나 공업생산체계에서 유추하는 제1, 제2의 유형학과 달리 로시의 제3의 유형학은 건축 자체의 도시적 질서를 규정하려 하며 도시공간의 분석 방법을 넘어 도시설계의 도구로 변모한다.
로시는 집단 기억의 장소로서 도시를 접근하며 역사 및 기념성의 문제를 통해 도시에 대한 독특한 기억을 환기시키고 있다. 왜냐하면 로시에게 건축가는 삶의 전개가 가능한 하나의 공간을 제공하는 데 관심을 가지는 것이라고 생각하기 때문이고, 현대인의 삶이란 도시를 기반으로 일어나는 현상이기 때문이다. 이러한 의미에서 유형학은 살아가는 방법, 도시의 선택, 도시와 건축물에 대한 인간의 선택을 의도한다고 생각하기 때문이다. 여기서 로시 건축에서 볼 수 있는 일상적인 성격과 비일상적이며 기념비적인 성격들이 혼재하고 있는 이중적인 특성들이 존재하는 것이다.
▶ 삶과 죽음의 도시
기존의 공동묘지를 확대하면서 인접한 대지에 새롭게 건설된 이 작품은 1971년 현상설계의 당선작이다. 이 작품은 도시의 일상적인 성격과 기념비적인 성격을 동시에 함유하고 있으면서 인간의 삶과 죽음을 담담하고 차가운 분위기로 전달한다. 더불어 기존 공동묘지의 역사성을 구체적인 설계언어로 이어받으면서, 도시에서 황량화되고 있었던 기존 공동묘지를 활성화시키고, 과거와 현재, 건축과 도시, 삶과 죽음과의 만남을 시도하고 있다.
먼저, 배치 형태에서부터 이 작품이 가지고 있는 역사적 연속성이라는 특성을 확인할 수 있다. 기존 공동묘지의 ‘ㅁ’자형 배치형태를 이어받으면서 새로운 해석을 시도하고 있다. 기존의 신고전주의 양식의 공동묘지에서 배치 형태만 이어받아 연속성을 유지하면서도 구체적인 건축언어는 모더니즘에 근거한 차가운 이성적 형태를 유지한다. 이러한 차가움은 지적 충만감에서 오는 건축가의 자신감의 표현으로, 새로운 공동묘지 입구에서 가장 극대화된다. 거대한 판벽 열주로 구성된 회랑 부분은 인간의 거주 형태의 가장 원형적인 형태인 박공 지붕의 형태를 가지고 있으면서도, 창도 문도 없이 1백m나 길게 늘어선 판벽 열주의 숲은 인간 삶의 왜소함과 허망함을 이곳을 찾는 방문객들에게 선사한다. 삶의 덧없음을 일깨워준다고 할까? 이 도입 부분을 지나면서 방문객/ 조문객들은 죽은 자와의 만남을 위한 정화 과정을 겪는다. 자칫 무미건조하고 삭막하기 쉬운 이 공간은 빛과 그림자도 건축의 일부라는 건축가 자신의 논리를 가장 잘 표현하는 공간이기도 하다. 기능적으로도 이 부분은 공동묘지에 필요한 시설들이 배치되고, 상부층은 벽감으로 설치된 납골당들이 배치되어 있다. 이 부분은 공동묘지의 유형학적 형태를 표현하고 있는 부분이며, 전체 건물에서 주변이 되면서 중심이 되는 장소이기도 하다.
사뭇 광활하다고 할 정도로 수평적으로 길게 늘어선 새로운 공동묘지의 배치는 ‘ㄷ’자 형태로 주변부를 감싸주는 건물군에 의해서 외부공간의 확산과 부유를 방지하며, 각기의 건물군들이 서로에게 배경이 되어주는 역할을 한다. 또한, 이 ‘ㄷ’자형 건물은 필로티 개념을 수용한 개구부를 축으로 과거의 공동묘지와 일관된 관계를 유지한다. 특히, 붉은 색으로 된 일상적인 테라코타로 마감된 시멘트블록으로 되어, 일상적인 재료를 통한 익숙함을 표현하고 있다. 이런 일상성은 건축재료에서 뿐만 아니라 형태에서도 나타난다. 어느 도시에서나 볼 수 있는 박스(box) 형태의 건물은 배치와 인식의 중심으로 기능하면서, 배경으로서 존재하는 주변부 건물과 대비되는 효과를 갖는다. 아직은 전체 건물이 완공되지 않아 마치 거대한 굴뚝처럼 보이는 원통 건물동과 어떤 효과를 자아낼지 모르지만, 미완성인 지금의 상태에서도 주변의 건물을 배경화시키면서, 인식체계 속에서 일종의 좌표를 설정할 수 있는 중심으로 기능한다.
이 건물군에서 가장 기념비적인 요소로 기능하는 원통 건물과 직육면체 건물은 내부의 ‘ㄷ’자형 건물과 어우러져, 인간의 골격을 형상화한 것이다. 이 계획에서 중심 부분은 삼각형 형태로 연속적으로 조금씩 높아지는 납골당 부분이 균일한 질서를 만들면서 중심성을 강조하고, 내부의 ‘ㄷ’자형 건물은 삼각형 뼈대를 감싸안으면서 주변부로 확장되는 역할을 한다.
중앙의 삼각형 뼈대 부분의 양 극단에는 공공의 공간인 원통 건물과 전쟁 희생자를 위한 직육면체 납골당 건물이 위치하여 축의 마무리를 담당한다. 동일한 개구부를 가지고 있는 정육면체 구조는 지붕도 없고, 층도 없는 구조이며, 창문틀과 유리도 없다. 왜냐하면 이것은 죽은 자의 집이기 때문이며, 미완성의 건축을 의미하기 때문이다. 우리가 흔하게 볼 수 있는 일상의 건축은 이렇게 미완성이란 개념을 통해서 지극히 일상적인, 그러나 우리 모두가 비일상이라고 강조하고 싶은 죽음의 공간을 만들어내고 있는 것이다. 거대한 굴뚝처럼 된 원통 건물은 뼈대 중앙의 동선을 통합하는 역할을 하며, 전체 건물에서 일종의 종합으로 기획되었다. 이것 또한 중세 이후에 도시의 모뉴멘트가 약화되면서 종탑을 대신하게 된, 하늘로 높게 치솟은 굴뚝이 사람들의 기억에 잔존하고 있는 역사적인 기억을 회상시키는 역할을 하는 것이다. 즉, 일상적인 요소를 극대화시켜 기념비적인 것을 만들고, 기능을 담당하는 납골당의 건물들은 형태적으로 최소화시켜 배경으로 존재하는 역할을 부여한 것이다.
새로운 공동묘지는 기하학적으로 가지런히 존재하여 무미건조한 공간적 특성을 보여주는 것 같으나, 3차원적으로 바라보는 건축은 요란하고 미끈한 미의식으로 치장한 부르주아 건축에서는 볼 수 없는, 건축의 본질적인 요소의 조합에서만 느낄 수 있는 감동을 부여한다. 즉, 기능에 부합하는 형태의 차별화를 통한 건축의 합리성을 통해서 이 죽은 자의 공간은 일상적인 느낌으로 다가서고, 빛과 그림자를 통해서 기념비적이고 비일상적인 감동으로 다가오는 것이다. 로시의 이 작품에서 기념비적인 성격은 죽음과 기억이라는 의미를 규정하고 있으며, 이러한 요소들로 중앙의 자잘한 뼈대를 한정하고 감싸안고 있다. 이곳에서 우리 시대의 도시와 건축은 서로간의 간섭을 통해서 화합하고 있으며, 우리가 희미하게 기억하는 과거와의 연속적인 만남을 시도하며, 빛과 그림자를 통해서 산 자와 죽은 자는 만남의 끈을 지속적으로 유지하고 있는 것이다.
▶ 마치면서
알도 로시의 <산 카탈도 공동묘지>는 죽은 자의 공간인 동시에 살아 있는 자의 공간이기도 하다. 침묵의 언어로 다양한 공간적 감흥을 자아내는 이 건축은 건축에서 합리성의 대표적인 산물이기도 하며, 지식인 건축가의 모습을 여실히 보여주고 있는 작품이기도 하다. 때로는 차갑고 냉소적이기까지도 한 이 건축은 순간적인 감성과 느낌으로 표현되는 건축의 참을 수 없는 지루함과 역겨움을 둔탁하지만 절제된 모습으로 구축하고 있다. 또한 역사와의 대면을 통해서 지역의 장소성과 역사적 연속성을 이어받으려는 노력을 건축가는 당연한 듯이 생각한다.
미학적 측면만 강조하는 덧없는 유행적 건축으로 점철된 현대건축의 상황을 들여다볼 때 로시의 작품은 신체의 병든 부분을 잘라내는 치료법을 선호하는 서양 의학보다는 몸 전체를 유기적으로 생각해 병든 부분과 정상적인 부분과의 조화를 생각하는 동양 의학에 가깝다고 할 수 있다. 침 한방으로 모든 병이 고쳐지는 것은 아니겠지만, 서서히 그러나 본질적인 문제에 대해 고민하여 근원적인 처방을 강조하는 한의학의 정신이 우리 시대, 여기에서의 건축적 문제를 해결할 수 있을 것이다.
건축은 패션과 다르게 한번 구축되면 오랜 기간 많은 사람들에 의해 함께 향유되고 사용되어야 하는 사회의 공동체적 소유물이 되는 것이다. 이것이 로시가 말하는 집단적 기억을 추출해내는 근거가 되며, 도시를 구성하는 건축의 기본 유형을 구축하는 건축적 성질일 것이다. 이런 한 단편과 단편들이 축적된 것이 도시의 역사성이고, 건축에서의 연속성일 것이다. 소비문화의 극대치를 보여주는 예쁘장하게 포장된 우리의 건축에서 우리는 무엇을 느끼고, 무엇을 얻을 수 있을 것인지,
자신에게 침잠해보는 것이 지금 우리에게 절실하게 요구되는 것이 아닐까?
[출처] 산 카탈도 공동묘지-알도 로씨|작성자 sowjae
6. 알도 로시 Aldo Rossi

2019. 6. 29.

알도 로시

aldo rossi
1931-1997

aldo rossi 1931-1997

1960년대 로버트 벤츄리의 '어머니집'과 CCIA*로 당겨진 포스트모더니즘의 불씨는 1970 년대 후반에 갑자기 큰 불로 갑자기 번지기 시작했다. 미국에 찰스 무어와 마이클 그레이브스, 영국에 제임스 스털링, 독일쪽에 리온과 롭 크리어 형제, 오스트리아에 한스 홀라인이 있었다면 이태리에는 알도 로시가 있었다. 어떤 측면에서는 알도 로시의 건축이 이들 보다 더 빠르게 모더니즘에 이의를 달기 시작했다고 볼 수도 있다.
하지만 이태리 합리주의의 전통 위에서 시작한 알도 로시의 포모 (pomo; postmodernism)는 이들과 좀 다르다. 합리주의를 이어받아 기능면에서 모더니즘과 큰 차이가 없을 정도다. 그래서 신합리주의 neorationalism 라고도 한다. 장식도 없다. 공간구성도 미니멀리즘이 기본이다. 하지만 도시의 역사성과 콘텍스트를 존중하는 유형학 typology 의 건축을 주장한다. "역사는 없다"로 시작한 그로피우스의 바우하우스 모더니즘과의 차이다. 장시간에 걸쳐 도시가 구성한 역사적 "집단 기억" collective memory 도 건축의 일부가 되어야한다는 것이다. 인터내쇼널 스타일의 모더니즘은 이런 역할을 못하구 있다고 생각한다. 새 건물형태를 창조한다기보다 기존 도시의 장구한 역사를 기억하는 개념의 유형학적 건축이 필요하다고 주장한다. 기억을 간직하는 기념비적 건축이 필요하다. 이런 개념을 그의 저서 "도시의 건축" the architecture of the city (1966, 35세) 에서 역설한다. 리온 크리어 등 낭만적고전주의 건축가들의 유럽 전통도시 재생 개념에 크게 영향을 준다. 1980년대 이후 베를린의 도시재생이 대표적이다.
이 책과 비슷한 시기에 출간된 로버트 벤츄리의 저서 CCIA* (1966년) 와 함께 시너지 효과를 내면서 모더니즘에 대한 반론이 대서양 양쪽에서 시작되었다고 볼 수있다. 소위 포모의 불씨가 된 책들이다. 시기적으로 모더니즘의 1세대 거장들이라고 하는 F.L.라이트는 1959년, 르 코르뷔지에는 1965년 작고했다. 미스 mies vdr 와 발터 그로피우스는 1969년 영면한다.
*CCIA: COMPLEXITY AND CONTRADICTION IN ARCHITECTURE, 건축의 복합성과 대립성, 1966

도시의 건축, 1966
기념비적 기하학
디테일하게는 유형학적 기본적인 형태의 사각형, 삼각형등 매우 단순한 기하학적 형태 요소를 이용한다. 기둥과 콜로네이드 등을 평상시 스케일을 벗어나 과감하게 "기념비적으로" 사용한다. 또한 폴리크롬의 마감색상을 과도하게(?) 사용하기도 한다. 특히 녹색과 적색을 많이 이용한다. 대체로 박스형태는 유지하지만 엄청난 크기의 둥근 기둥과 끝없는 규모의 콜로네이드를 이용하여 평상적인 스케일을 크게 벗어난다.

코흐스트라세, 베를린
green, green, green
녹색의 철제 인방보 lintel 도 로시의 홀마크이다. 이런 측면이 포모로 분류하는 이유이다. 제임스 스털링도 사용하는 녹색이다. 벤츄리가 '어머니집'에서 사용한 녹색이다. 당시 안티모더니즘의 상징색처럼 사용됐다. 모더니즘에서 "금기시하는 녹색"이 여기저기서 유행처럼 번져나갔다. 1980년대 경에 특히 번성했다. (바우하우스 출신의 마르셀 브로이어가 벤츄리에게 주택에서 녹색은 금물이라고 하자, 청개구리식으로 "바로 이거야"라고 하며 '어머니집' 바나 벤츄리 하우스 외벽을 녹색으로 칠했다고 한다.)
Green. Green. Green.
------------------------------

selected works of aldo rossi

● modena, italy
san cataldo cemetery, 1971
산카탈도 묘원, 모데나, 이태리

san cataldo cemetery, 1971
산카탈도묘원은 실제로 기능이나 형태적으로 미니멀리즘의 모더니즘이라고 하는 편이 옳다. 우리에게 오랫동안 익숙한 큐브 방형체의 건물, 사각형 창문과 기둥 등 "기억"을 찾아간다.

산카탈도묘원 납골당

산카탈도묘원

산카탈도묘원 납골당

산카탈도묘원 납골당 내부

산카탈도묘원 납골당 내부
조적+철골조 노출
로시는 콘크리트나 조적빌딩에 부분적으로 철골구조를 자주 사용한다. 이런 노출 철골의 의장적 사용은 당시 대세이던 미스mies vdr의 영향을 보여준다.

산카탈도묘원 납골당 내부

산카탈도묘원 납골당 내부
typology 유형학
기억 속의 익숙한 사각형 형태를 가지고 "기념비적인" monumental 형태/공간을 만든다.
memory and monumental.

산카탈도묘원 납골당 내부


알도로시의 산카탈도 묘원 매스터플랜.
공사는 아직도 진행형이다.

산카탈도 묘원
산카탈도 묘원은 중심가에서 3km 정도 북서쪽의 외곽에 있다. 동쪽에 기존의 묘원이 있고 서쪽에 알도 로시의 증설 계획부지가 보인다.

산카탈도 묘원 납골당 master plan
작게는 우리에게 익숙한 옛 것 들이지만, 크게는 굉장히 "기념비적"이다. 예사롭지가 않다. 우리는 기억할 뿐 창조해 내지 않는다고 주장한다.
I do not invent. I just remember.

산카탈도 묘원

묘원 내부 중정에서 본 납골당

san cataldo cemetery, 1971
박공지붕이라는 형태만 제외하면 구조체로만 형성된 미니멀리즘의 단순한 공간이다.

산카탈도 묘원 매스터플랜 스케치
-------------------------------------

● milan, italy
gallaratese housing, 1973
갈라라테세 공동주택, 밀라노, 이태리

gallaratese housing, 1973

갈라라테세 공동주택, 밀라노, 이태리, 1973

gallaratese housing, milan, 1973
스케일을 벗어난 엄청난 기둥. 익숙한 형태들로 구성한 기념비적 건물이다.
memory. monumental.

gallaratese housing, milan, 1973

갈라라테세 공동주택, 밀라노, 이태리
갈라라테세 공동주택은 밀라노의 중심가에서 북서쪽으로 8km정도 외곽에 있다.

갈라라테세 공동주택, 밀라노, 이태리

갈라라테세 공동주택, 밀라노, 이태리, 1973
엄청난 스케일의 콜로네이드. 기념비적이다.

갈라라테세 공동주택, 밀라노, 이태리
유형학적인 typological 형태만 가지고도 새로운 형태를 창조해낼 수 있다고 말하는 것 같다. 거꾸로 얘기하면 "창조는 없고, 옛것을 기억했을 뿐이다" 라고 말한다.
i do not invent. i just remember.

갈라라테세 공동주택, 밀라노, 이태리
쥬세페 테라니의 카사델파시오에서 본 글래스블록 아닌가요?

갈라라테세 공동주택, 밀라노, 이태리

갈라라테세 공동주택, 밀라노, 이태리

gallaratese housing, 1973
--------------------------------------

● fukuoka, japan
hotel il palazzo, 1994
호텔 일팔라조, 후쿠오카, 일본

hotel il palazzo, 1994

호텔 일팔라조, 후쿠오카, 일본
i do not invent. i just remember.

호텔 일팔라조, 후쿠오카, 일본

호텔 일팔라조, 후쿠오카, 일본
일팔라조는 후쿠오카 캐널시티에서 서쪽으로 500m정도 인근에 있다.

호텔 일팔라조, 후쿠오카, 일본

호텔 일팔라조, 후쿠오카, 일본

호텔 일팔라조, 후쿠오카, 일본

호텔 일팔라조, 후쿠오카, 일본

호텔 일팔라조, 후쿠오카, 일본
red travertine and green copper spandrel beam

호텔 일팔라조, 후쿠오카, 일본
green. green. green

hotel il palazzo, 1994
기둥을 줄눈없이 통돌처럼 처리했다. 헐.
---------------------------------


aldo rossi

kochstrasse housing, 1981-1988
기념비적 코너기둥, 십자형 창문틀, 박공지붕 등 유형학적 건축으로 도시의 기억을 간직해야한다.
i do not invent. i just remember.

코흐스트라세 공동주택, 베를린, 독일

코흐스트라세 공동주택은 베를린 포츠다머플라츠의 소니센터에서 동쪽으로 1.2km 정도 떨어져있다. 체크포인트찰리가 불과 몇 블록이다.

코흐스트라세 공동주택, 베를린, 독일

코흐스트라세 공동주택, 베를린, 독일

kochstrasse housing, 1981-1988
i do not invent.
i just remember.
ciao.
ywp06302019. updated 10012022
--------------------------------------

references
wikipedia
britannica
archdaily
dezeen
architectuul
flickr
tumblr
inessabinenbaum.com
-----------------------------------

*Credits: This talk has been produced and written by Young Woo Park, aia, ncarb. The most of writing has been based on the reference materials above, u.n.o. Please email to the writer above (ywpark5293@gmail.com) in case of having questions or disagreements.
*Copy rights reminder: Th is talk can not be used or reproduced in other publications on-line or off-line, entirely or partially, without a written consent of the writer.
*Photo Credits: Photos and images are also from the reference materials above, u.n.o. Please email to the writer in case of having questions or disagreements. Thanks.

알도 로시 (1931-1997)
주세페 테라니의 전통을 이어받은 로시는 시인이 되었어야할 건축가라는 평을 들을 만큼 유럽 전통도시에 대한 노스탤지어를 이론적으로 펼친 건축가이다. 로버트 벤츄리 만큼 모더니즘에 이의를 제기한 원로라할 수 있다. 의도했던 안했던 포스트모더니즘의 열풍에 절대적인 역할을 했다고 할 수 있다. 쥬세페 테라니의 이태리 합리주의 전통을 이어받아 신합리주의를 이끌어낸 건축이론가이다. 자동차사고로 66세의 이른 나이에 별세했다.


from wikipedia
---------------------------------

로시는 건축가이자 이론가이지만, 생활기구 디자인도 했다. 로시는 "form follows function." 라는 말에 동의하지 않는다고 했다. 그리고 "나는 고안해내지 않는다. 다만 기억할 뿐이다." 라고도 얘기한다.

주전자 kettle for alessi

라 코니카 커피 메이커

라 쿠폴라 커피 메이커



테아트로 델몬도, 베니스, 1979
floating theater. 기억의 형상들. back to the past?

monumental


green

출처 - 알도 로시 aldo rossi : 네이버 블로그 (naver.com)
7. 이탈리아 로마 21세기미술관(MAXXI Museum)
외국의 신건축 |
1. 개요
MAXXI는 이탈리아어로 Museo nazionale delle Arti del XXI secolo, 즉 국립21세기 미술관(National Museum of XXI Century Arts)이란 뜻의 약자로서, 로마 플라미뇨지구(Flaminio district)에 위치한 국립현대건축미술관이다. 이 미술관은 이탈리아의 문화유산부(Ministero dei beni e delle attività culturali) 산하의 재단에서 관리하고 있으며, 자하 하디드가 여러 전문분야를 집결하여 하나의 종합공간으로 디자인한 것으로 예술과 건축분야의 실험과 혁신을 다룬다.

사진 1. 이탈리아 로마의 국립21세기 미술관 국립21세기 미술관 MAXXI(National Museum of XXI Century Arts)

사진 2. 이탈리아 로마의 국립21세기 미술관 국립21세기 미술관 MAXXI 야경(출처 : 인터넷자료)
이 프로젝트는 2000년에 처음 공표되어 10년만에 완공되었다. 자하 하디드의 디자인은 1998년의 국제현상공모에 출품된 273개의 디자인 가운데 당선된 작품이다.
MAXXI는 영국왕립건축가협회(RIBA)의 2010년 스털링 건축상(Stirling Prize)을 수상하였다. 15년동안 이 상은 매년 영국건축의 발전에 크게 기여하는 것으로 판단되고 영국내에서 설계나 시공이 이루어진 유럽최고의 건축물에 수여되고 있다. 이 건물은 직사각형의 튜브를 구부려서 서로 겹치거나 교차시켜 쌓아 올린 것으로 육중한 고가도로를 닮았다.

사진 3. MAXXI Museum 항공사진(출처 : 인터넷자료)
MAXXI는 두 개의 뮤지엄, 즉 “미술관”과 “건축관”으로 이루어져 있다. 이 속에는 오디토리움과 도서관, 예술 및 건축전문 미디어 도서관, 서점, 카페테리아, 바(bar) 겸 레스토랑, 기획전시나 공연, 교육 등을 위한 갤러리가 포함된다. 미술관 앞의 커다란 공공광장은 예술작품 및 라이브 이벤트를 개최하기 위해 계획된 것이다.

사진 4. 미술관앞의 커다란 공공광장

사진 5. 미술관앞 공공광장의 전시조형물
영국 일간지인 가디언지(The Guardian)에 따르면 MAXXI는 “준공된 작품 중 자하 하디드의 가장 훌륭한 최신작품”이자 로마의 고대 유산들과 어께를 견줄 수 있는 걸작이라는 갈채를 받은 작품이라고 한다. 미술관 주변의 야외중정은 대규모 예술작품 설치공간으로 제공되고 있다.
이 두 뮤지엄의 영구 소장품들은 직접 구입하거나 중개, 혹은 주제별 공모를 통해, 젊은 예술가들에게 수여하는 상이나 기부, 영구임대 등을 통해 수집된 것들이다.
이 컬렉션에는 게르하르트 리히터(Gerhard Richter), 가브리엘 바실리코(Gabriele Basilico), 길버트 앤 조지(Gilbert & George), 마이클 래데커(Michael Raedecker)의 작품뿐 아니라 건축가인 까를로 스까르빠(Carlo Scarpa), 알도 로시(Aldo Rossi), 삐에르 루이기 네르비(Pier Luigi Nervi) 등의 건축작품들이 포함되어 있다.

사진 6. 건축가들의 작품모형이 소장되어 있는 건축전시관
2. 이탈리아 로마 국립21세기미술관(MAXXI)
건축가 : 자하하디드 아키텍츠(Zaha Hadid Architects)
위치 : 이탈리아 로마 플라미뇨 지구
건축주 : 이탈리아 문화유산부의 국립21세기미술관재단(Fondazione MAXXI)
구조 엔지니어 : 앤서니 헌츠 어소시에이츠 OK 디자인그룹
프로젝트 시작년도 : 1999년
준공년도 : 2009년
건축연면적 27,000㎡

사진 7. 국립21세기미술관인 MAXXI가 있는 로마 플라미뇨 지구(Flaminio district) 전경(출처 : 인터넷자료)
로마에 있는 국립21세기미술관인 MAXXI는 2000년에 건축계획이 공표된 이후 약 10년의 세월이 지난후인 2009년 완공되어 대중들에게 개방되었다. MAXXI는 로마의 과거 몬텔로 군대막사가 있던 플라미뇨 지구에 위치해 있다. 이 건물은 미술관과 건축관으로 이루어져 있으며, 현대작품의 수집과 보존 및 연구와 전시를 통해 예술과 건축작품 활동을 증진시키기 위한 목적을 가지고 있다.

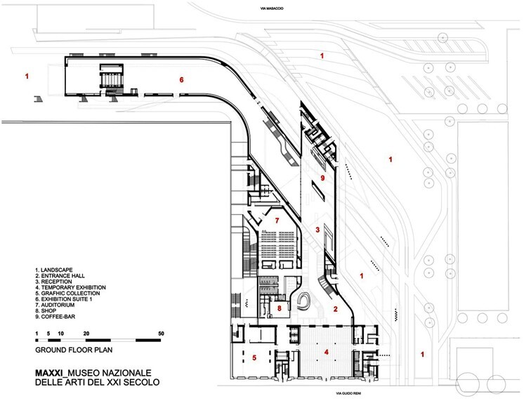
그림 1. MAXXI 배치도

그림 2. MAXXI 1층 평면도

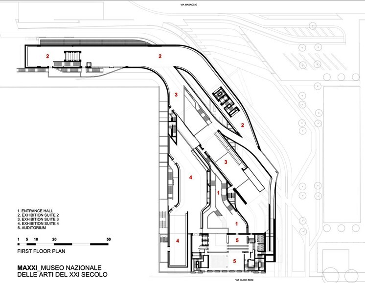
그림 3. MAXXI 2층평면도

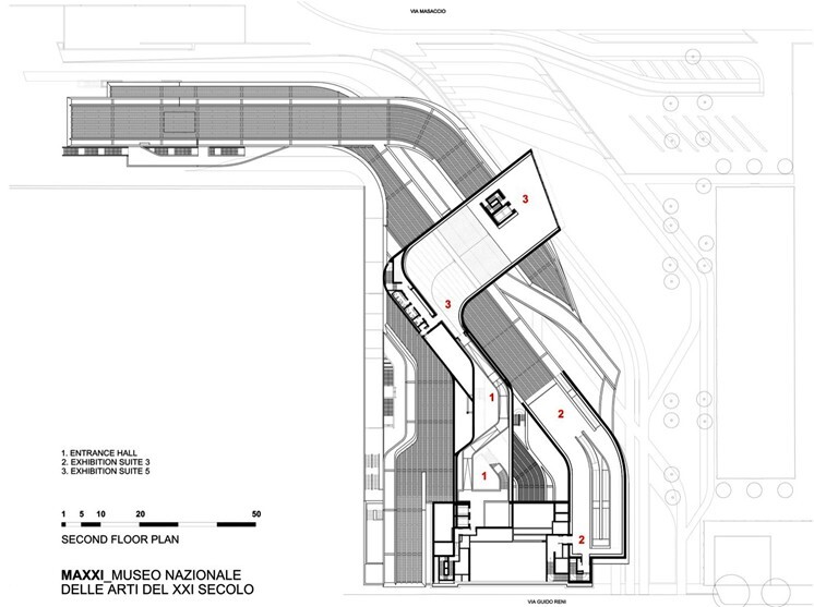
그림 4. MAXXI 3층평면도

그림 5. MAXXI 지붕층평면도
MAXXI는 하나의 건물이 아니라 여러 개의 건물로 되어 있다. 이 아이디어는 “한 대상물로서의 뮤지엄”이란 관념에서 벗어나 “건물들의 마당”이라는 개념으로 바꾸어보자는 것이었다. 많은 연구 끝에 자하 하디드는 이를 선의 집합이라는 개념으로 발전시켰으며, 여기서 내부공간과 외부공간을 만들어내기 위해 끊임없이 교차하고 분리되는 벽은 이 대지의 일차적인 힘이 되고 있다. 더 이상 이 건물은 단순한 하나의 뮤지엄이 아니라 내부공간과 외부공간의 조밀한 조직이 서로 교차되고 겹쳐지는 도시의 문화적 중심이 되고 있는 것이다.

사진 8. 내부공간과 외부공간의 조밀한 조직이 서로 교차되고 겹쳐지는 도시의 문화적 중심 MAXXI(출처 : 인터넷자료)

사진 9. 한 대상물로서의 뮤지엄이란 관념에서 벗어나 건물들의 마당이라는 개념을 도입한 MAXXI(출처 : 인터넷자료)
이 프로젝트의 주요 개념은 시각예술의 전시센터라는 이 건물의 목적과 직접적으로 연관되어 있다. 공간을 가로지르는 벽들과 그들의 상호관입은 MAXXI의 내부 및 외부공간을 한정한다. 이런 시스템은 그 건축물의 3개층 모두에서 작용하는데, 그 중 각 건물과 갤러리들의 연결 브릿지가 여러 개 있는 2층이 가장 복잡하다. 방문객은 컴팩트한 볼륨을 가진 하나의 독립건물이 아니라 벽들의 상호관입과 각 건물들을 연결하는 브릿지를 통해 일련의 연속적인 공간으로 들어서게 되는 것이다.

사진 10. 1층 입구홀에서 본 각 건물과 갤러리들을 연결하는 대공간의 복잡한 브릿지

사진 11. 2층의 브릿지와 3층으로 연결되는 계단
자하 하디드의 말처럼 로마의 국립21세기미술관은 “사물을 담는 그릇이 아닌 예술을 위한 캠퍼스”로서, 그곳에서는 다이나믹하고 인터랙티브한 공간을 창조해내기 위하여 동선들이 서로 중첩되고 연결된다. 비록 건물 프로그램이 평면도상으로 분명하고 정리된 것처럼 보일지라도 플렉시블한 용도가 이 프로젝트의 주요 목표이다. 공간의 연속성은 여분의 칸막이 벽이나 차단시설없이도 모든 종류의 이동식 전시나 기획전시를 가능하게 해 준다. 아트리움에 들어서면 이 프로젝트의 주요 요소들, 즉 구부러진 콘크리트벽과 매달린 검은색 계단, 자연광을 받아들이는 개방적인 천정 등이 명확하게 드러난다. 자하 하디드는 이와 같은 요소들을 이용하여 다양한 투시점을 가지는 새로운 종류의 공간적 흐름과, 현대생활의 혼돈스런 유동성을 구체화할 수 있게 디자인된 파편화된 기하학을 만들고자 시도하였다.

사진 12. 다양한 투시점을 가지는 새로운 종류의 공간적 흐름을 보여주는 내부 통로공간
안드레아 지아노티(Andrea Giannotti)에 따르면 ‘해체되어 혼란스런 유동성’의 개념이 어떻게 고전적 유산을 가진 로마라는 “정적인” 도시의 아이덴티티와 어울리는지 의문이 든다는 것이다. 하지만 비평가들과 대중들의 반응은 긍정적으로 나타났는데, 특히 기존의 도시구조와의 관계속에서 구부러진 매끈한 벽은 신고전주의의 대칭적인 파사드와 서로 소통하고 있다.

사진 13. 신고전주의의 대칭적인 파사드와 서로 소통하고 있는 MAXXI의 매끈한 외관
이 새로운 유기체는 측면의 깨끗하고 막힌 표면에 의해 건물 정면속으로 포함되며, 그에 따라 어울리지 않을 것 같은 건축물과 고전적 도시간에 공존의 타당성과 필요성을 분명하게 보여준다. 이 미술관은 파노라믹 뷰포인트로서 그 끝이 잘린 측면벽을 개방함으로써 도시의 폐쇄적인 블록속으로 잘 스며들고 있다.

사진 14. 파노라믹 뷰포인트가 되는 MAXXI의 3층의 잘린 벽과 반사되는 도시풍경

사진 15. 파노라믹 뷰포인트가 되는 MAXXI의 3층의 잘린 벽과 반사되는 도시풍경
이 건물에서는 천정에 얇은 콘크리트빔을 두고 유리덮개와 여광기를 두는 등 자연광에 대해서는 특별히 주의해서 다루고 있는데, 콘크리트빔 아래쪽에는 레일을 설치하여 예술품들을 매달 수 있도록 하였다. 콘크리트빔과 계단, 그리고 직선으로 설치된 조명은 방문객들이 실내통로를 따라갈 수 있도록 안내해 주는데, 이 통로는 3층에 있는 대형실내공간에서 끝난다. 비록 육중한 코어가 가로막고 있긴 하지만 여기서부터 커다란 창문을 통해 도시를 조망할 수 있다.


사진 17. 예술품을 매달 수 있도록 가느다란 수직의 수평빔 아래쪽에 설치된 레일과 천창

사진 18. 예술품을 매달 수 있도록 가느다란 수직의 수평빔 아래쪽에 설치된 레일과 천창(자료 : 인터넷 사진)

사진 19. 지붕의 수평빔 설치공사 전경(출처 : MAXXI ROMA, C + A)

사진 20. 지붕의 수평빔 설치공사 전경(출처 : MAXXI ROMA, C + A)
미술관과 건축관은 3개층이 오픈된 대공간 주변에 위치해 있으며, 이 대공간을 통하여 상설전시실과 기획전시실, 오디토리움, 리셉션 서비스, 까페테리아 및 서점으로 접근할 수 있다. 바깥으로는 건물외벽을 따라 보행통로가 위치해 있는데, 이 보행통로는 과거 군대막사로 거의 1세기 동안 차단되어 있었던 도시의 고리를 회복시켜 준다.

사진 21. 3개층이 오픈된 대공간

사진 22. 3개층이 오픈된 대공간내 전시실 주출입계단

사진 23. 카페테리아

사진 24. 오디토리움
전시벽으로 분리된 내부공간들은 유리지붕으로 덮여 있어 지붕의 루버로 걸러진 자연광을 각 갤러리로 충분하게 유입시키고 있다. 이 빔들은 공간시스템의 선적인 분위기를 강조하여 각 갤러리들의 여러 방향을 분명하게 구분하는데 도움을 주며 미술관과 캠퍼스를 지나는 동선을 용이하게 처리해 준다.
이처럼 전시공간을 한정하고 볼륨의 상호관입을 결정하는 콘크리트벽과, 자연광을 변조시키는 투명한 지붕 등 이 두 가지 주요 건축요소가 이 프로젝트를 특징짓고 있다. 지붕시스템은 뮤지엄에 필요한 최고의 기준을 따르는 것으로, 태양광 여과장치와 인공조명 및 환경조절장치가 있는 프레임과 지붕창이 통합되어 있다.

사진 25. 지붕의 천창을 통해 자연광이 유입되는 전시 후의 갤러리
유동적이고 물결모양의 형태, 공간들의 다양성과 상호관입, 그리고 변조된 자연광의 이용은 공간적이고 기능적으로 매우 복잡한 틀을 유도하여 건물 내외부공간에서 끊임없이 변화하면서 예기치 않은 조망을 제공하고 있다.

사진 26. 천창을 통해 들어온 전시공간의 빛과 조명
MAXXI의 벽들은 주된 흐름과 부차적인 흐름을 만들어낸다. 주된 흐름은 갤러리들이며, 부차적인 흐름은 브릿지들의 연결이다. 대지는 특이하게 생긴 L자형 모습으로, 기존의 두 건물 사이를 따라 형성되어 있는데, 자하 하디드는 이것을 제한요소가 아니라 장점으로 활용하여 선형의 구조물을 다발로 묶고 뒤틀어 봄으로써 그 가능성과 건물의 매스를 탐구하는 기회로 만들었다.

사진 27. 부차적인 흐름을 만들어내고 있는 브릿지들의 외부적 연결

사진 28. 부차적인 흐름을 만들어내고 있는 브릿지들의 내부 연결복도
미술관이 위치한 플라미뇨(Flaminio) 지역은 렌조 피아노(Renzo Piano)의 오디토리움(Parco della Music)이 최근에 준공되는 등 혁신적인 프로그램으로 지난 몇 년 동안 대중들의 관심을 받아왔다. 오랜 기간동안의 MAXXI 건설과정에서 도시재생에 대한 개념이 만들어지게 된다. 뿐만 아니라 MAXXI는 이탈리아 최초의 국립현대미술관이다. 이 때문에 이 미술관이 로마의 중심지가 되게하는 여러 경제활동들과 더불어 대중들과 미디어의 많은 주목을 받게 될 것이며, 현대적 아이덴티티를 가지는 항구적인 모습으로 로마를 보이게 할 것이다.

사진 29. 렌조 피아노의 오디토리움(Parco della Music) 전경
3. 이탈리아 로마의 국립21세기미술관과 스털링 건축상(Stirling Prize)
로마에 위치한 자하 하디드의 국립21세기미술관은 2010년, 과거 영국건축에 크게 기여한 건축가에게 수여하는 영국왕립건축가협회, 즉 RIBA의 스털링건축상을 수상하였다.
이 상을 결정한 심사위원들은 MAXXI에 대해 다음과 같이 논평하였다.
“MAXXI는 예술작품 설치를 위한 건물처럼 보이지만 여러 측면에서 도발적인 이 프로젝트는 그 형태와 구성의 복잡성과는 달리 평온함을 보여줍니다. 이 프로젝트의 본질은 모든 것이 과도할 정도의 성능을 가져야만 한다는 것을 의미하는 것이지요. 즉 디자인의 전체 과정에서 참여한 각 건축가들은 일련의 각 전시공간속에 무엇을 걸게 될 것인지, 녹슨 1톤의 철제를 지탱할 벽이 미니어처들로 장식될 것인지 알 수 없었습니다.
이 미술관은 다섯 개의 주요 공간으로 구성되어 있습니다. 이 건물은 태양광을 조절할 수 있는 물결모양의 지붕과 방문객들에게 방향성을 제공하고 재미를 주면서 높은 천장의 공간을 만들어내는 천창과 보를 통하여 과감하게 태양광을 받아들이고 있습니다.
이 건물은 성숙한 하나의 건축작품으로서, 여태껏 지어진 건축물중의 한 단편에 불과하지만 수년간에 걸친 실험의 정수입니다. 다시 말해 자유분방한 선으로 일련의 동굴같은 경관을 연출하고자 했던 자하 하디드의 부단한 노력의 결과라는 것이지요. 정해진 방식을 벗어난 작업의 결과 방문객들은 마치 탐험하는 듯한 느낌을 받게 됩니다. 아마도 그것이 지금까지 한 그녀의 작품중 최고가 되게 한 것으로 보입니다.”
자하 하디드 아키텍츠가 리바의 스털링상을 받는 것은 이번이 처음으로, 2008년 오스트리아 인스브룩의 노르드파크 케이블철도(Nord Park Cable Railway, Austria, 2008), 2006년 독일 볼프스부르크의 파에노과학센터(Phaeno Science Center, Wolfsburg, Germany, 2006), 그리고 2005년 독일 라이프찌히의 BMW중앙빌딩(BMW Central Building, Leipzig, Germany, 2005) 등 이전에 그녀가 디자인했던 세 개의 작품이 수상작 후보자 명단에 오른 적이 있다.

사진 30. 오스트리아 인스브룩의 노르드파크 케이블철도(Nord Park Cable Railway, Austria, 2008)

사진 31. 2006년 독일 볼프스부르크의 파에노과학센터(Phaeno Science Center, Wolfsburg, Germany, 2006)
MAXXI는 다음 수상 후보작중에서 최종적으로 선정된 것이다.
1. 릭 매더 아키텍츠(Rick Mather Architects)가 디자인한 영국 옥스퍼드의 애쉬몰린박물관(Ashmolean Museum, Oxford)
2. 테이스 앤 칸(Theis and Khan)이 설계한 런던의 베이터맨 로우(Bateman's Row)
3. DSDHA가 설계한 길포드의 크라이스트 칼리지스쿨(Christ's College School)
4. dRMM이 설계한 런던의 클레이팸 매너 초등학교(Clapham Manor Primary School)
5. 데이비드 치퍼필드 아키텍츠(David Chipperfield Architects)가 줄리안 해럽 아키텍츠(Julian Harrap Architects)와 협업한 베를린의 신박물관(Neues Museum)
2010년 리바의 스털링건축상 심사위원들은 리바회장인 루스 리드(위원장), 건축가인 이반 하버(Ivan Harbour), 에드워드 존스(Edward Jones), 딕슨 존스교수(Dixon Jones), 역사가겸 작가인 리사 자딘(Lisa Jardine), 방송인인 마크 로슨(Mark Lawson) 등이다.
참고문헌 및 웹사이트
1. http://www.zaha-hadid.com/architecture/maxxi/
2. http://www.archdaily.com/43822/maxxi-museum-zaha-hadid-architects/
3. http://www.arcspace.com/features/zaha-hadid-architects/maxxi-museum/
4. http://en.wikipedia.org/wiki/MAXXI_%E2%80%93_National_Museum_of_the_21st_Century_Arts
5. http://en.wikipedia.org/wiki/MAXXI_%E2%80%93_National_Museum_of_the_21st_Century_Arts
6. 서울역사박물관, E-Newsletter 제15호, 영원한 도시속 신 모던라인, 2009.11.16.
7. Aleksandar Milojkovićć, Marko Nikolićć, RETHINKING MUSEUM ARCHITECTURE –- ART MUSEUM AT THE BEGINNING OF THE 21 CENTURY, Faculty of Civil Engineering and Architecture, University of Nišš (Serbia)
8. Jane Anderson, architectural design, An AVA Book, 2011
여기에 기술된 글과 사진은 일부 도면과 사진을 제외하고는 모두 본인이 직접 촬영, 기술한 것으로 저작권은 블로그 관리자인 본인에게 있으며, 무단전재를 금합니다.
출처 - 유럽신건축 05 이탈리아 로마 21세기미술관(MAXXI Museum) (auric.or.kr)
8. 창이 없는 건축, 일 팔라초 호텔
[건축여행] '건축의 탄생' 저자, 김홍철

언제나 정해져 있는 귀족의 삶을 지겨워했던 루시는 관습적인 삶에서 조금은 벗어나고픈 마음에 사촌언니 샬롯과 함께 이탈리아 피렌체의 어느 호텔에서 며칠 묵게 된다. 그러나 두 여인은 호텔방의 전망이 마음에 들지 않아 레스토랑에서 불만을 토로하고 있던 차에 어느 영국인 중년 에머슨은 그녀들에게 다가와 방을 바꿔주겠다는 말을 건낸다. 나쁠 것 없는 제안에 그녀들은 흔쾌히 수락한다. 에머슨은 자신의 아들 조지와 함께 방에 머무르고 있었는데, 그는 방을 바꿔준 대신에 여인들에게 조건을 내건다. 자신의 아들과 친구가 되어달라는 것이었다. 에머슨은 자신의 아들이 비관주의에 빠져있어 많이 걱정이 되었던 것이다. 그렇게 여행지에서 만난 루시와 조지는 서로의 다른 점에 이끌리다가 결국 우여곡절 끝에 서로 사랑하게 된다. 이 이야기는 이 E.M 포스터의 '전망좋은 방'의 소설의 줄거리이다.
이 소설을 바탕으로 지어진 건축물이 일본에 있다. 성이라는 뜻을 가지고 있는 일 팔라초 호텔(Hotel Il Palazzo, 일본 후쿠오카, 1987~1989)이다. 후쿠오카 하카타 하루요시 지역 재개발 사업으로 일본상점관리센터(JASMAC)의 소유주는 나카강 둔치에 호텔을 하나 짓고 싶어했다. 건축주는 자신의 지역에서 우위를 차지하고 싶은 마음으로 베니스 세계극장과 산 카탈도 국립묘지를 설계한 세계적인 이탈리아 건축가 알도 로시에게 호텔 설계를 의뢰했다. 로시는 재개발로 들쑥날쑥해 있는 나카강이 너무 볼품이 없었다. 하지만, 호텔은 지역적으로 중요한 곳에 위치하고 있었기에, 지역의 중심이 될 수 있는 건축이 필요했다. 로시는 문득 E.M 포스터의 전망좋은 집이 떠올랐다. 방 하나가 매개가 되어 사랑을 이룬 소설은 결국 호텔에서 가장 중요한 것은 창 밖에 있는 아름다운 전망이 아니라 호텔에서 머무는 사랑과 삶이라고 로시는 생각했다. 그래서 로시는 텅빈 방에서 볼품없는 전망을 볼 바에는 호텔의 창을 모두 없애 버리고, 호텔 안에서 이루어질 삶에 집중하게 만들었다. 그렇게 일 팔라초 호텔의 건축은 시작되었다.
로시는 '새로 지어지는 건축은 주변 건축을 모방해서는 안된다. 새 건축은 지역을 변화시키는 힘을 가져야 한다'고 말하며, 주변 환경과는 전혀 어울리지 않은 로마건축양식을 가져온다. 호텔의 전체는 이란산 붉은 트레버틴 벽돌로 마감하고, 층간 구별을 위해 정면부에 녹색 동판으로 마감한 상인방을 층별로 설치했다. 거기다가 로마시대에나 있을 법한 굵은 기둥을 전면에 반복적으로 나열해 마치 그리스 신전으로 들어가는 경험을 갖게 해준다. 그리고 호텔을 하나의 도시로 보이기 위해 건물의 양쪽에 작은 별채들을 배치했다. 게다가 호텔 앞마당에 숙박객들이 강의 경치를 즐길 수 있게 이탈리아식 광장을 설치했다. 그 외에 공공공간은 일본 건축가인 우치다 시게루와 객실은 미츠하시 이쿠요가 참여해 디자인했다.

로시는 언제나 건축에서 장소성을 강조했다. 이 공간에서 겪는 경험으로 기억을 되살려 고대 이탈리아의 장소를 그대로 이전해 투숙객에게 마치 다른 세계로 들어온 것만 같은 경험을 느끼게 해주고 싶었던 것이다.
로시의 건축은 성공했다. 아주 독특한 형태의 호텔은 많은 사람들의 이목을 끌었고, 미국 AIA상과 후쿠오카 도시경관 상 그리고 건축계의 노벨상인 프리츠커 상을 수상하는 영광을 안았다.
9. Newspaper area complex - 알도 로시


Newspaper area complex - 알도 로시(Aldo Rossi)
Berlin-Mitte / Germany
| 알도로시는 1931년 밀라노에서 출생하여 밀라노 공대를 졸업하고 모교에서 교수생활을 하였다. 알도로시의 건축작품에는 죽음을 예감한 근원적인 비관주의가 깃들어 있다고 생각된다. 그것은 한 시대의 종말, 인류의 죽음과 같은 불가피하게 맞이할 종말적 개념을 건축행위속에 내재시키고 있다. 로시의 프로젝트는 그 기본적인 기능을 넘어서 의미와 의의를 지니고 있으며, 로시의 유추와 유형학에 의한 디자인 접근과정을 잘 반영하고 있다. 로시의 건축은 유추적이다. 한 인간의 침전된 기억, 연극의 무대, 실상과 허상및 이미지와 형실세계 등이 혼합되고 그것이 로시가 갖고 있는 유추의 회로를 거쳐서 건축으로 결실화되는 것이라 하겠다. 항상 기억의 회로를 거친 건축, 그것이 생의 공간이든 죽음의 공간이든간에 그의 건축은 영원의 주제가 되고 있다고 생각된다. |

후쿠오카시의 중심부를 흐르는 하루요시(春吉)강에 면한 부지에 계획된 도시형 호텔
"새로이 지어지는 건축은 부지주변의 기존건축을 모방해서는 안된다. 새로운 건축은 그 지역을 변화시키는 힘을 가져야 한다" 라고 설계자 알도로시는 말한다
이 건축의 디자인상의 특징은 완전히 폐쇄된 FACADE에 나타나 있다. 일본건축에서는 쓰이지 않는 서양고전건축의 원리가 강한 존재감을 표현하기위한 수단으로 쓰였다
FACADE에 쓰인 이란산의 붉은 트래버틴은 동양과 서양의 접점에 사욜되어 왔던 돌이라는 사실, 그리고 고대 최초의 건축에 사용되어진 돌이라는 점에서 선택되었다
본관을 둘러 골목, 별동, 기단 등이 도시적 요소로서 배치되어 있다
이 건물은 미국 AIA상과 후쿠오카시 건축상을 받았다
(JA 1991-2 ANNUAL)
# 작가의 변 - 알도 롯시 *
이 복합 건축에서 가장 중요한 것은 그 소재하는 위치이다
상업지역과 행락지역을 연결함으로써 이 지역의 재개발을 시작하도록 했기 때문이다
따라서, 건축은 이 지역의 특색을 명시하는 것이어야 한다. 특히 호텔은 가장 중요한 유일 한 재산이기 때문에 그 설계가 이 지역을 급변시키게 될지도 모른다
이 호텔의 건설 및 마 스타플랜은 우리들의 도면을 통해서도 일 수 있듯이 전면적인 도시의 재생을 초래할 가능 성이 있다. 마스타플랜은 우리들의 용지를 둘러싼 광대한 부지에서는 호텔, 회의장, 레스토 랑, 디스코장 등의 주요 건축물의 배치를 나타내고 있다
우리들은 강변에 테라스가 있는 여러 작은 레스토랑과 바를 마련하도록 제안하고 있다. 그것이 강과 이 지역을 연결시키게 되기 때문이다. 그 목적하는 바는 새로운 해안지구의 이미지이다
새 건축물은 건축기법의 요청에 따라 부지 경계선에서 내려온 곳에 있고, 거기에 1층으로 된 기간을 설치했다
7층인 호텔 건물은 이 지층위에 위치한다. 1층의 중앙 출입구는 디스코장, 바, 레스토랑으 로 통한다. 옆쪽 출입구는 다른 레스토랑 및 호텔 엘리베이터로 통한다
호텔의 주출입구는 광장과 접하고 있다. 광장은 대부분의 이탈리아 도시의 광장과 마찬가 지로 건물의 건축 일부를 이루고 있다. 이탈리아식 광장의 인용은 로마산 석회화를 사용했 기 때문에 한층 강조되고 있다. 광장에서는 건물의 정면과 강경치를 즐길 수 있다. 건축이 라는 것은 즐거움을 맛보러, 또는 건물의 미를 음미하러 방문하는 시민과 관광객들에게 옛 날이나 지금이나 그 판단의 기준을 두고 있는 것이다
정면은 붉은 돌로 디자인했다. 우리들은 이란산 적색 석회화를 제안했다. 이 암석은 빛과 기상조건의 변화에 따라 색채도 변화한다. 즉, 비가 올 때는 밝은 적색으로, 황혼일 때는 금색이 된다. 이 암석은 매우 화려한데 이 것과 광장 석회화의 백색과 금색의 배식은 더없 이 아름다운 조화이다. 정면을 돌과 커다란 강철 상인방으로 만들었기 때문에 구조레벨의 차이를 뚜렷이 알 수 있다. 녹색 상인방이 수평으로 달려 있어서, 구성에 강한 힘과 질서를 부여한다
양옆의 건물은 벽돌로 만들고 리드미컬한 객실의 창을 제외하고는 일체 장식을 배제했다. 호텔에 들어서면 로비와 프론트가 있고 필요한 시설들이 모두 갖추어져 있다. 로비의 우측에는 조용한 바가 있다. 객실은 윗층에 있다. 우리들의 생각으로는 기술적·경 제적인 관점에서 볼 때, 건설은 매우 간단하다
이 프로젝트는 내장건축과 더불어 골조 및 구조를 우리들이 만드는 것이 원칙이다. 여러 공간에 대해서 개성과 감수성을 발휘하도록 우리들은 일본의 인테리어 디자이너들에게 제안 하고자 한다. 다른 문화간의 결합이 작품에 역동적인 개성을 낳게 되므로 이것은 매우 중요 한 일이다
10. 유럽에는 모든 건축이 있다 01

유럽은 하나의 대륙이지만 오래된 역사만큼 각 나라와 도시마다 건축의 특성이 매우 강하다. 독일은 실용적인 건축이
주로 나타나는데, 네덜란드는 새롭고 실험적인 현대건축이 많다. 벨기에는 다양한 외국 건축가들의 작품을 받아들이는데 프랑스의 경우는 최신 건축 재료를 이용한 자유로운 건축을 선보인다. 스위스는 단순한 형태의 미니멀리즘이 주축인데 비해 이탈리아는 오래된 건축 유산을 보존하는데 힘쓴다. 남유럽의 포르투갈은 현상학적인 백색의 건축이 중심이며 스페인은 자연의 원리와 형태를 이용한 조각과도 같은 건축이 나타난다.
많고 많은 유럽의 건축 중에서도 중세 건축부터 근대건축과 최신의 현대건축까지 한 번에 만날 수 있는 도시들을 찾아 나선다. 바로 독일 서쪽 지역에서부터 시작해서 네덜란드 남부를 들리고, 벨기에를 가로질러 프랑스 북부까지 다양한 건축이 파노라마처럼 펼쳐지는 여정이다. 그 건축기행의 시작은 독일과 네덜란드다.
쾰른(Köln) 지역은 중세시대부터 근대와 현대건축의 정수를 만끽할 수 있다. 쾰른 중앙역 바로 앞에 있는 쾰른 대성당(Kölner Dom)은 도시의 상징이다. 13세기 중세시대에 착공되어 19세기에 완공된 독일의 대표 성당이자 세계에서 세 번째로 큰 고딕 양식의 성당이다. 규모도 규모지만 신성 로마 제국 시절 이탈리아 원정을 통해 가져온 동방 박사 3인의 유골함을 안치하기 위한 건축물이라는 역사적 의미도 크다.
원래 하얀색의 조면암이었으나 제2차 세계 대전 당시 폭격과 매연으로 검게 변한 상태로 세월과 역사의 또 다른 단면을 그대로 보여주고 있다. 대성당 바로 옆에는 루드비히 박물관(Museum Ludwig)은 독일 건축사사무소 버스만+하베러 아키텍텐(Busmann+Haberer Architekten)이 설계한 박물관이다. 공장과도 같은 특이한 형태이지만 상당한 규모의 전시공간에 유럽 최고의 미술작품을 전시하고 있다.

쾰른 대성당 가까운 곳에 있는 콜룸바 뮤지엄(Kolumba Museum)은 스위스 건축가인 피터 줌터(Peter Zumthor)가 고대 로마의 유적 위에 그대로 건축물을 올려 역사성을 직접 느낄 수 있는 공간이다. 원래 로마네스크 양식의 성 콜룸바 교회가 있었는데 제2차 세계 대전으로 파괴되었고 1950년에 고딕 예배당으로 대체되었다. 현재는 천공된 회색 벽돌이 망토처럼 건축물을 둘러싸고 있다. 저층부에서는 벽돌 사이로 비치는 빛 안에서 직접 유적 사이를 걸으면서 그리고 상층부에는 발굴된 고전 기독교 유적과 현대 예술작품을 감상할 수 있는 독특한 박물관이다.

독일 쾰른에서 남서쪽으로 약 55km 떨어진 작은 농촌마을 메허니히(Mechernich)에는 피터 줌터가 설계한 작은 채플인 브루더 클라우스 펠트카펠레(Bruder Klaus Feldkapelle)가 있다. 워낙 시골이라 오기 힘들고 주차하고도 꽤 걸어야 하지만 넓은 밀밭 사이에 거석처럼 서 있는 자연 속 건축풍경과 채플 내부 공간의 경험은 결코 잊을 수 없다. 스위스 건축가가 선사하는 최고의 존재와 종교 공간이다.

15세기의 수호성인 브루더 클라우스(Bruder Klaus)에게 경의를 표하고자 마을 주민이 당시 쾰른의 프로젝트를 진행하던 건축가에게 요청하여 진행되었고 지역 농부들이 직접 시공에 참여하였다. 24개 층의 콘크리트와 나무 프레임을 태워 남긴 내부 벽체 위로 빛이 쏟아지는 검은 동굴의 채플은 현대건축과 빛이 만나 최고의 현상학적 공간이 탄생하였다. 설계를 맡기려는 재벌들의 의뢰를 마다하면서도 작지만 큰 의미가 있는 건축을 위한 건축가의 세심한 배려와 설계과정은 또 다른 감동의 이야기이다.

이곳을 떠나 네덜란드와 벨기에로 가는 도중 만난 도시는 아헨(Aachen)이다. 아헨 공대로 유명한 이 도시는 근대건축의 거장 미스 반 데어 로에(Mies van der Rohe)가 태어난 도시이다. 건축가의 이름보다 ‘더 적은 것이 더 많은 것이다(Less is More)’라는 말로 더 유명한 건축가이다. 미스 반 데어 로에가 1886년 태어난 미스 반 데어 로에 생가(Mies van der Rohe Geburtshaus)는 눈에 띄지 않는 평범한 4층의 주택이다. 현재 다른 사람이 살고 있어 출입구는 닫혀 있고 입구 옆에 푸른색의 작은 표식만이 남아있다.
이와 함께 아헨 시내에는 미스 반 데어 로에(Mies van der Rohe) 박물관, 학교, 그리고 아헨 공대 안에 있는 건축학과와 실험실 건물 등을 둘러볼 수 있다. 건축가의 대표작이나 유명한 건축물이 있지는 않지만 근대건축의 대표 거장 미스 반 데어 로에(Mies van der Rohe)에 관심이 있으면 지나면서 들려볼 만하다.

독일 국경 도시 아헨에서 가까운 곳은 네덜란드의 마스트리히트(Maastricht)다. 네덜란드는 1980년대부터 암스테르담의 신도시나 로테르담의 전후 복구 작업 덕분에 현대건축으로 가득 차 있다. 그중 네덜란드의 가장 남쪽에 있는 도시 마스트리흐트는 다른 곳과 조금 다른 독특한 건축문화가 자리 잡고 있다.
지리적으로 네덜란드라기 보다는 벨기에와 독일에 더 가까운 탓인지 도시의 건축도 네덜란드 건축가의 설계보다 유럽의 다른 지역 건축가들의 작품이 많다. 그런데 이 도시를 방문하는 사람들에게 가장 인기 있는 곳은 오래된 성당을 서점으로 바꾼 획기적인 곳이다. 서점 도미니카넨(Book Store Dominicanen)은 마스트리흐트 구도심에 있는 성당 서점이다.
주변이 조금 복잡한 탓에 이곳에 들어가면 밖과는 다른 안정과 조용함을 얻을 수 있다. 1294년 고딕 양식의 도미니칸 교회로 만들어져서 18세기 수도원으로 이용되다가 다양한 공공시설과 근린 생활 시설로 사용되었다. 2006년에 성당이 서점으로 탈바꿈하여 현재 전 세계에서 가장 아름다운 서점으로 많은 사람들이 찾아온다. 높은 층고의 성당 안에서 책을 고르고 서점 속 카페에서 지인들과 보내는 시간은 책을 매개로 문화를 접하는 장소를 경험하는 특별한 기회가 된다.

구도심의 반대쪽에 위치한 보나판텐 뮤지엄(Bonnefanten Museum)은 마스트리흐트를 대표하는 현대 건축물이다. 박물관은 1995년 이탈리아 건축가 알도 로시(Aldo Rossi)가 설계했다. 외부에서는 돔 형태의 쿠폴라(Cupola)가 제일 중요한 형태적 특징인데 전면부에서는 보이지 않고 강가 쪽인 박물관 후면에 있다. 신고전주의의 독특한 형태만큼 중앙의 계단을 중심으로 펼쳐진 내부 전시 공간 분위기도 특이하다.

보나판텐 뮤지엄 건너편에 위치한 바이엘 의료 케어(Bayer Medical Care B.V.)는 스위스 건축가 마리오 보타(Mario Botta)가 설계한 건축 작품이다. 건축가의 상징처럼 된 적벽돌로 건축물 전체를 쌓아 올려 단순한 기하학의 원통과 육면체 매스를 만들고 각 매스를 연결하고 일부 공간을 빼내서 건축가 특유의 공간 구성을 완성한다. 우리에게는 서울 강남 교보타워로 알려진 건축가가 이곳에서는 고층의 교보타워를 주변에 맞춰 낮게 펼쳐 놓은 것처럼 풀어냈다. 이 건축의 익숙함에 낯선 도시가 조금 편하게 다가온다.

출처 : 유럽건축기행_유럽에는 모든 건축이 있다 01 : 네이버 포스트 (naver.com)
'■ 자료실 ■ > 스크랩 - 세계의 건축가' 카테고리의 다른 글
| 세계의 건축가 -046. 로버트 벤투리 Robert (Charles) Venturi (0) | 2023.07.07 |
|---|---|
| 세계의 건축가 -045. 아돌프 로스 Adolf Loos (0) | 2023.07.02 |
| 세계의 건축가 -043. 고든 번샤프트 Gordon Bunshaft (0) | 2023.06.24 |
| 세계의 건축가 -042. 단게 겐조 Tange Kenzo (0) | 2023.06.22 |
| 세계의 건축가 -041. 마리오 보타 (3) | 2023.06.20 |






























